Škola, věda

Novostavby, Ostatní, Škola, věda, Veřejný prostor/landscaping

CCP_City Cell Prototype

CCP_City Cell Prototype

NEXT Institute

2. 11. 2018 ×

Škola, věda

Fakulta umění a Fakulta tělesné výchovy v centru Ostravy

Fakulta umění a Fakulta tělesné výchovy v centru Ostravy

Za Divadlem Antonína Dvořáka by měla vybudovat
Ostravská univerzita nový multifukční areál na Černé louce u řeky
Ostravice, který bude sloužit nejen studentům ale i veřejnosti.

10. 10. 2018 ×

Škola, věda

Petr Stolín a Alena Mičeková: Mateřská školka na Nové Rudě

Petr Stolín a Alena Mičeková: Mateřská školka na Nové Rudě

Ve Vratislavicích mají školku inspirovanou japonským stylem

10. 10. 2018 ×

Škola, věda

Školní družina Újezd

Školní družina Újezd

Bohuslav Strejc, Jiří Korelus, projectstudio8

27. 9. 2018 ×

Ostatní, Škola, věda

Zahrada v Kolodějích

Zahrada v Kolodějích

Skupina

24. 9. 2018 ×

Rekonstrukce, Škola, věda

Rekonstrukce Filozofické fakulty Masarykovy univerzity dokončena

Rekonstrukce Filozofické fakulty Masarykovy univerzity dokončena

Budova D má nový vchod i čítárnu

21. 9. 2018 ×

Škola, věda

Školka v Lysé nad Labem

Školka v Lysé nad Labem

Spirála částečně zapuštěná do terénu

7. 9. 2018 ×

Doprava/infrastruktura, Škola, věda

Školní pavilon v BB Centru

Školní pavilon v BB Centru

Hlavním impulzem pro výstavbu školního pavilonu bylo rozšíření Křesťanské základní školy Elijáš o střední školu

6. 9. 2018 ×

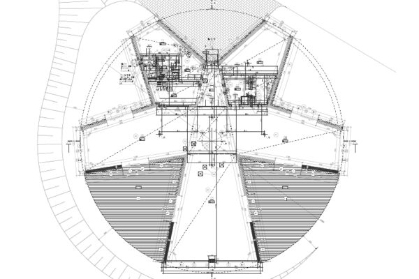
Novostavby, Škola, věda

Mateřská školka Hvězda

Mateřská školka Hvězda

Hvězda vepsaná do kruhu.

5. 9. 2018 ×

Novostavby, Škola, věda

Přístavba objektu u střední školy

Přístavba objektu u střední školy

chaarchitekti

23. 8. 2018 ×