Výroba

Rekonstrukce, Výroba

Pivovar Proud v Plzni

Pivovar Proud v Plzni

Mimosa architekti

4. 1. 2024 ×

Novostavby, Výroba

Farma Vraňany

Farma Vraňany

FUSIONarchitects

27. 9. 2023 ×

Novostavby, Výroba

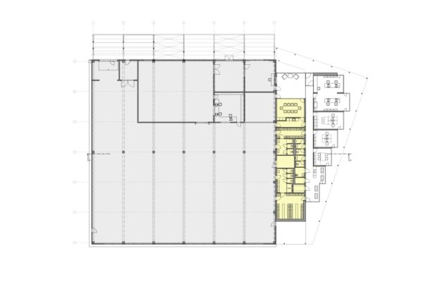
Výrobní hala EVVA – GUARD Tišnov

Výrobní hala EVVA – GUARD Tišnov

Tomáš Dvořák architekti

12. 7. 2022 ×

Interiéry/design, Rekonstrukce, Výroba

Pivovar Falkenštejn

Pivovar Falkenštejn

Atelier Hoffman

8. 3. 2022 ×

Novostavby, Výroba

Dílna na motocykly

Dílna na motocykly

DPA

14. 2. 2022 ×

Novostavby, Rekonstrukce, Rodinné domy, Výroba

Lihovar s pěstitelskou pálenicí

Lihovar s pěstitelskou pálenicí

Objektor Architekti

27. 1. 2022 ×

Interiéry/design, Rekonstrukce, Veřejný prostor/landscaping, Výroba

Likérka

Likérka

Kuklica Smerek architekti

4. 1. 2022 ×

Administrativa, Ostatní, Rekonstrukce, Výroba

Barevna

Barevna

henkai architekti

1. 12. 2021 ×

Projekty, Výroba

Fibran Havraň

Fibran Havraň

Studio LOXIA

5. 11. 2021 ×

Administrativa, Novostavby, Výroba

Hala s administrativou v Milevsku

Hala s administrativou v Milevsku

Radovan Vacik Architects

19. 7. 2021 ×