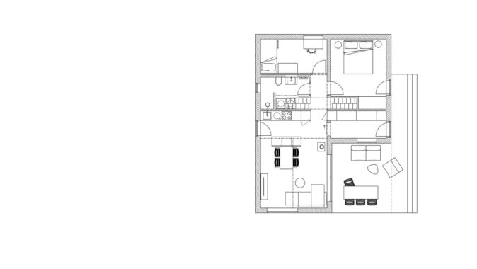
Toto víkendové útočiště
se nachází na periferii rekreační osady v Malé Hraštici u
brdských lesů. Bylo navrženo jako náhrada za chatu původní, která neplnila
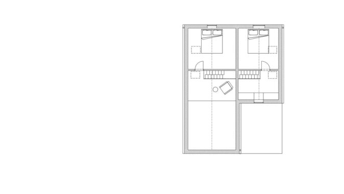
prostorové ani hygienické požadavky. Dvojice sedlových střech
umožňuje efektivní využití podkrovních prostor a zachování příjemného
měřítka chaty zapadajícího do charakteru území. Účelně jsme využili každý
centimetr vnitřního prostoru, v obývací části však necháváme vyniknout
výšku objektu. Interiér je jednoduchý, od začátku návrhu počítá s ekonomickým
řešením a využívá chytré truhlářské vestavby doplněné o pár kusů
nábytkových solitérů.
















