Transformace – nové domácnosti Nad Bažantnicí Letohrad
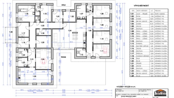
Domov pod hradem Žampach rozšiřuje službu chráněného bydlení. V současné době probíhá na území města Letohrad v lokalitě Nad Bažantnicí výstavba 2 nových domků. V rámci projektu budou postaveny dva samostatně stojící
jednopodlažní, nepodsklepené dvojdomy. V každém z dvojdomů budou dvě
samostatné bytové jednotky (1+1 a 4+1) a zázemí pro personál, skladování
a technická místnost. Každý dvojdům bude obývat 6 uživatelů (2+4).
Účelem projektu je zajištění nezbytných podmínek pro dokončení 1. etapy
transformace ústavní péče v Domovu pod hradem Žampach s cílem
deinstitucionalizace tohoto zařízení sociálních služeb.
Stavba je realizována ze systému Porotherm.
___
Domov pod hradem Žampach
Domov pod hradem Žampach je příspěvkovou organizací Pardubického kraje, která poskytuje pět druhů sociálních služeb.
Tyto služby jsou určeny pro zdravotně postižené osoby s mentálním postižením a eventuálně s přidruženou tělesnou nebo smyslovou vadou.
Základním posláním Domova pod hradem Žampach ve službě chráněné bydlení je umožnit uživatelům žít v prostředí a způsobem, které jsou velmi podobné životu lidí v běžné domácnosti.
Podporovat uživatele této služby v získávání a upevňování schopností a dovedností vést běžný způsob života a rozhodovat o osobních záležitostech.
Poskytovat pomoc při ochraně a uplatňování práv a oprávněných zájmů uživatelů služeb.
www.uspza.cz
podle podkladů společnosti Wienerberger






















