Architekti pracovali se světlými barvami a dřevem. Tento přístup jim dal možnost akcentovat konkrétní kusy nábytku použitím výrazných či tmavých barev.
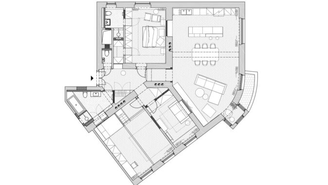
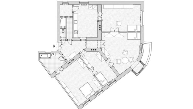
Zdůrazněné interiérové prvky se nesou v námořnické modré. Obývacímu pokoji takto dominuje velký gauč. V koupelnách v této barvě najdete vestavné police či skříňky na míru z tmavě modré lakované dýhy. Součástí změny dispozic bylo i navýšení původně jedné koupelny na dvě. Obě koupelny jsou přístupné skrze truhlářské prvky a jsou tedy oku návštěvníků skryty.
Velkorysý obývací prostor, technické zázemí a vstup do koupelen zakomponovány do vestavných skříní definují charakter pobytové části interiéru. Ložnice naopak působí díky svým rozměrům intimně.
Tisková zpráva, kráceno
Autoři návrhu: BekArch: Ing. arch. Jan Bek, Ing. arch. Linda Kozlová
Lokalita: Praha – Dejvice
Fáze: realizace
Rok dokončení: 2022
Plocha: 150 m2
Fotografie: Filip Györe
























