(ČTK) – Mělník má připravený první návrh nové podoby náměstí Karla IV. Nyní se k němu vyjadřují zástupci komisí pro dopravu, životní prostředí a regeneraci města. Případné úpravy bude město řešit s autorem návrhu, poté ho představí zastupitelům i občanům, kteří budou moci doplnit připomínky. Novinářům to na tiskové konferenci řekl starosta Mělníka Ctirad Mikeš (Mé město). Práce začnou zřejmě v roce 2018.
V lednu příštího roku by radnice měla znát první závěry. „Je to klíčová záležitost, která dlouhodobě ovlivní chod města možná na několik generací,“ uvedl Mikeš. Investice bude minimálně v řádu desítek milionů korun. Náměstí je v současnosti neharmonickou směsí s problematickými stavbami z doby komunismu.
Součástí proměny náměstí bude i demolice nedostavěné budovy, které místní říkají Hold nebo Teherán, nahradit by ji měly parkové plochy a hrací prvky, přesná podoba zatím není určena. „Velká část té plochy bude vedena jako parkovací plocha,“ doplnil místostarosta Milan Schweigstill (TOP 09). Demolice bude stát okolo 20 milionů korun.
Na náměstí má také v bývalém domě služeb vzniknout nová multifunkční knihovna, která bude sloužit i jako společenské centrum. Fungovat začne nejdříve za tři roky. Objekt radnice nechá nejdříve zateplit.
Doplněno Stavbaweb:
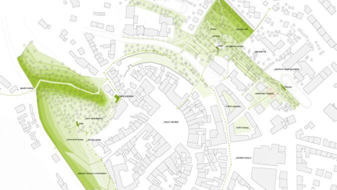
Město Mělník v roce 2014 vypsalo soutěž, jejím cílem byla odborná ideová příprava revitalizace celé lokality náměstí a návrh ideové koncepce asanace, návrh prostoru náměstí Karla IV. s důrazem na řešení úprav vlastní plochy náměstí a určení prostorového a hmotového řešení a regulačních prvků prostoru náměstí a návrh úprav nebo přestavby objektů VVS, DS, OS včetně jejich funkčního využití. Konečným cílem je revitalizace náměstí, vybudování životaschopné obchodní zóny s plným zázemím a pobytem obyvatel v celodenním provozu.
Vítězný návrh
Vítězný návrh na stránkách autorů – atelieru City Upgrade – najdete ZDE.
Informace o soutěži na revitalizaci náměstí najdete na stránkách
– města Mělník ZDE,
– ČKA ZDE.
Obnovu náměstí již v roce 2008 navrhla kancelář Chapman Taylor – jejich návrh naleznete ZDE.
Související články:
Náměstí Karla IV. v Mělníku 4.6.2015
Mělník chce do příštího června vědět, co s náměstím Karla IV.
Soutěž: Územní plán a revitalizace náměstí v Mělníku 22.5.2013
Mělník dokončil obnovu náměstí Míru se středověkou studnou 23.5.2012
Mělníku se nabízí možnost rekonstrukce náměstí Karla IV. 13.10.2008















