Administratívna budova F

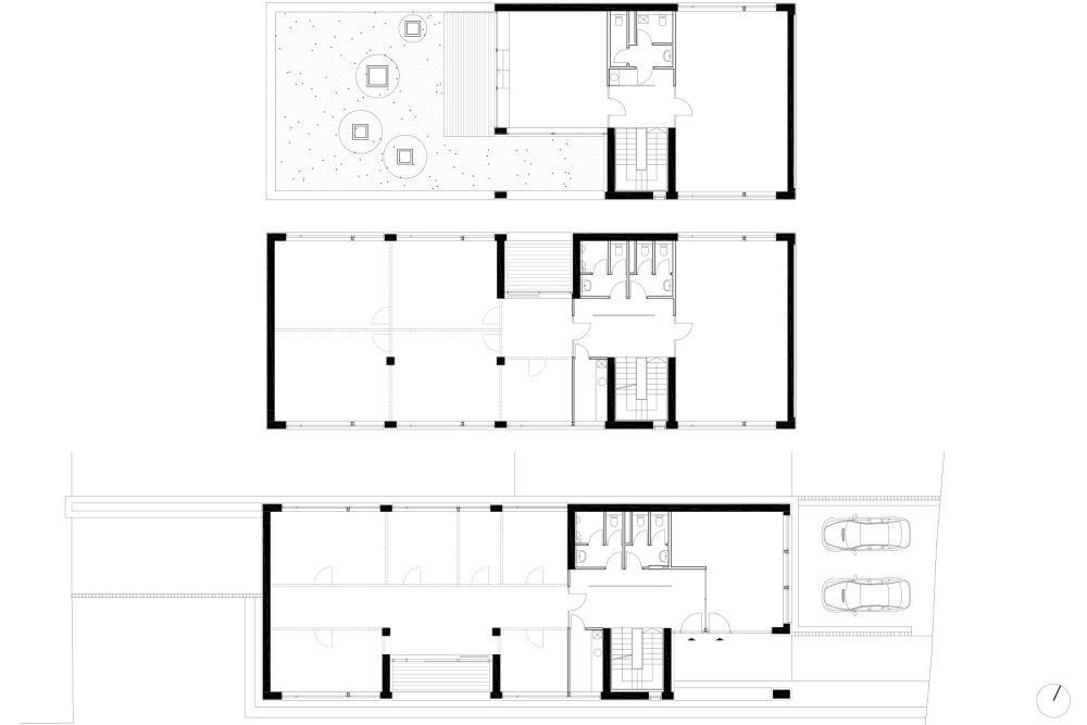
Návrh administratívnej budovy na mierne svahovitom pozemku v Bratislave je odpoveďou na pragmatické zadanie – návrh domu, ktorého využitie má byť do maximálnej miery univerzálne, jeho užívatelia totiž nie sú vopred známi.
Racionálny modul je opakovaný len s malými obmenami na štyroch podlažiach, ktorého jedno pole je pevne zadefinované – hygienickým blokom a priestorom schodiska. Ostatné priestory sú vďaka premyslenému členeniu okenných plôch voľne meniteľné. Strohú štruktúru oživujú nepravidelne umiestnené loggie, dodávajúc tak utilitárnej administratíve vnútorné zelené plochy a nepravidelným fasádam poetiku.

Comments are closed.