Stavba by měla připomínat loď kotvící v přístavu.
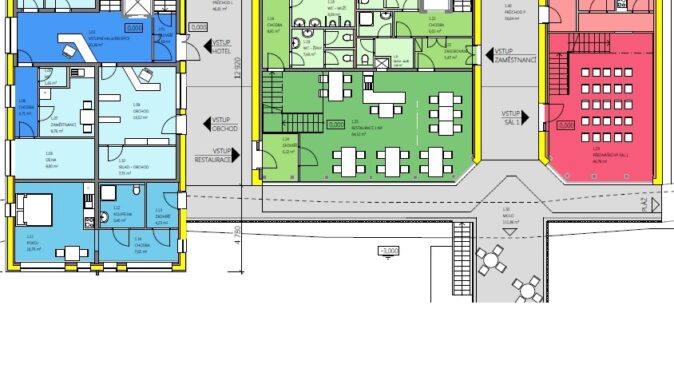
Kombinuje tři provozy: ubytování, stravování a konferenční prostory. Kapacitně
je zařízení určeno pro 120 osob i s personálem, z toho je 34 míst pro
ubytování, 42 v restauraci a 40 v konferenčních prostorách. Je tu celkem 11
pokojů, pět jich bude vybaveno kuchyní. Restaurace je rozdělena na veřejnou a
neveřejnou část pro hosty, konferenční prostory nabídnou čtyři sály. V přízemí
se nachází malý obchod sesportovními a rekreačními potřebami.
















