Předmětem přehlídky jsou projekty, které studenti FA ČVUT vypracovali zpravidla ve druhém ročníku v rámci předmětu ATBS – Ateliér bytová stavba. Do soutěže v letošním akademickém roce pedagogové nominovali 26 projektů z 12 návrhových ateliérů. Soutěž již sedm let sleduje kvalitu projektů a otevírá diskusi o metodice navrhování bytových staveb na FA ČVUT. Zasedání poroty a vyhlášení vítězů se konalo 28. února 2018.
3. místo:
Eliška Drahotová (Ateliér Redčenkov & Danda)
Bytové domy
Tre Cime
V zimním semestru ateliér pod
vedením dvojice Redčenkov – Danda zpracovával Motolské údolí, tedy oblast kolem
ulice Plzeňská a Vrchlické. Studentů se zadáním ATBS, tedy i mněm byl přidělen
pozmek, proluka, na území Košíř. V mém případě se jedná o proluku na styku
ulice Hlaváčkovy a Prachnerovy.
Nezastavěné Hlaváčkově ulici přiléhají
nevyužité plochy, které vytváří nefunkční přostředí, bloková zástavba z
Plzeňské a Prachnerově ulice zde nepokračuje. Právě tuto skutečnost se ve svém
projektu pokouším změnit. Dlouhá, šedesátimetrová, proluka v Hlaváčkově ulici
vybízela k rozdělení hmoty na více částí. S ohledem na měřítko a na zástavbu v Plzeňské ulici
jsem se rozhodla vytvořit hmoty tři. Rozhodujícím faktorem však bylo zachodávní
vjezdu a parkovaní ve dvoře, čehož obytvaleté okolní zástavby v současné době
využívají, a průchodu vnitroblokem z ulice Plzeňská do Hlaváčkovy ulice. Dalším
cílem bylo
i zkulturnění vnitrobloku. Navrhuji zde dětské hřiště, zpěvněné cesty a
parkovací stání.
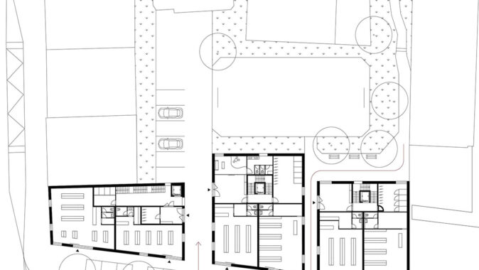
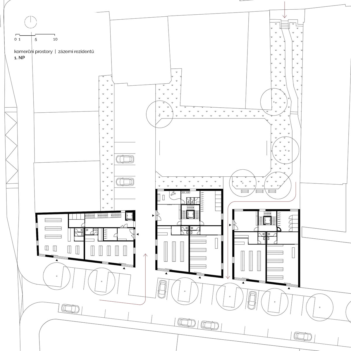
Tři schodišťové bytové domy jsou
orientované na ose sever-jih. Díky stejné výšké a absenci ustupujícího podlaží
tvoří kompaktní soubor. Západní fasáda jednoho z domů náleží ulici
Prachnerově. Zde navazuji na okolní
zástavbu. Na východní straně pokračuje zástavba Hlaváčkovy ulice dalším bytovým
domem. Vstupy do bytových domů jsou umístěny z boku.
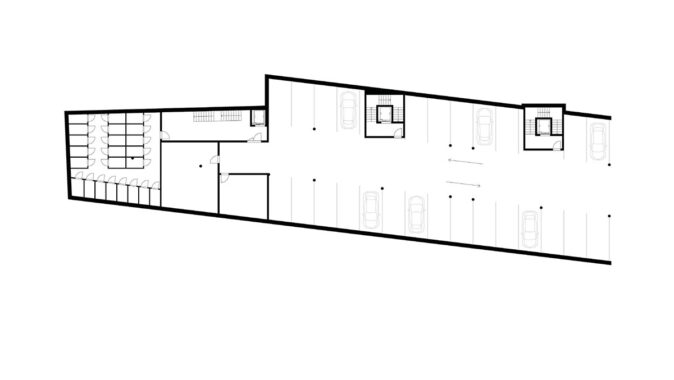
Domy
mají šest nadzemních a jedno podzemní podlaží. Parkování, umístěné v podzemí,
je společné
i s vedlejším bytovým domem v ulici. Vjezd do podzemních garáží je umístěn v
ulici Pod radnicí. Kromě parkovacích stání se v suterénu nachází rovněž
sklepy a technické místnosti, určené pro odpad a vytápění.
V parteru se nachází pronajímatelné komerční prostory, přístupné z Hlaváčkovy
ulice, a zázemí pro rezidenty. Ve vyšších patrech jsou rozmístěné byty různých
velikostí. Ve druhém, třetím a čtvrtém patře navrhuji šest 2KK bytů, jeden 3KK
a dva 4KK. Dohromady tedy celkem devět bytů na jedno podlaží. V pátém a šestém podlaží
navrhuji byty mezonetové, které mají přístup na střešní terasu.
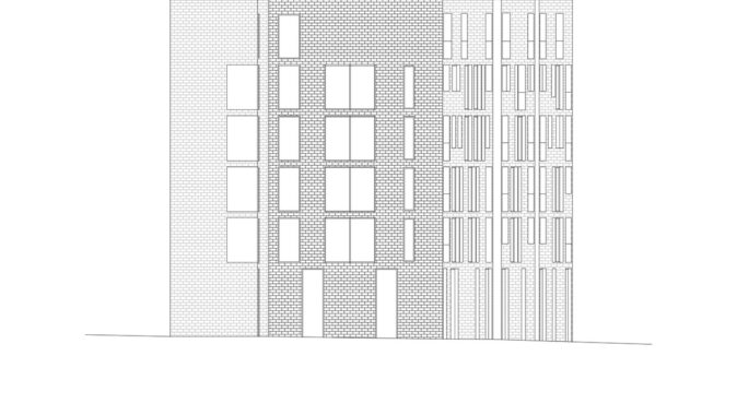
Co se
týče materiálů, na jižní a severní fasádě
dominuje černé režné zdivo, které spolu s rozměrnými okenními otvory a lodžiemi
tvoří dynamický pohled. Vnitřní stěny lodžií zůstavají světlé. Šedý pohledový
beton pokrývá boční stěny bytových domů. Kontrastuje tak s tmavou uliční
fasádou, která by v užších částech mezi domy netvořila vhodnou atmostféru.
Dlažební kámen s geometrickou skladbou
vyplňuje prostor před bytovými domy. Tvoří tak reprezentativní část
komunikace v Hlaváčkově ulici.
Poslední řádky věnuji osvětlení zvoleného
názvu pro můj projekt – Tre Cime. Tre Cime je impozantní tříčlenná skupina
skalních štítů v severní Itálii, symbol Dolomit. Návštěva této lokality byla
pro mne silným zážitkem, proto mi při přemýšlení nad pojemnování mých třech
bytových domů naskočila právě tato trojice.
Hrubá podlažní plocha: 5773,74 m2
Koesficient zastavěnosti: 0,65
Plocha pozemku: 1438,24
m2
Zastavěná plocha: 935,25
m2
Související články:
Druhá kůže 2018 – výsledky soutěžní přehlídky 5.3.2018






















