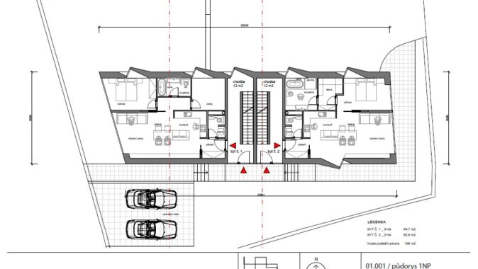
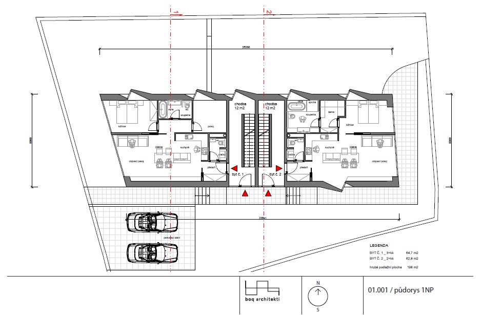
Chtěli jsme vytvořit objekt, který svou hmotou a polohou reaguje
na historické centrum města. Základní objem tvoří kvádr se sedlovou střechou,
který je z čelních stran seříznut rovnoběžně s přilehlou hranicí pozemku. Je zde
snaha o reflexi rostlé zástavby tím, že jsme respektovali kosé hranice pozemku i
při dodržení povinných odstupových vzdáleností.
Jednoduchost hmoty je rozbita ústředním prvkem celého objektu, a to arkýři. Arkýře pod úhlem vystupují z domu do prostoru, takže vznikají zajímavé průhledy z jednotlivých místností. Vnitřní prostory domu pomocí těchto arkýřů získávají východní, eventuelně západní světlo a to zejména při severní fasádě objektu.
Jednoduchost hmoty je rozbita ústředním prvkem celého objektu, a to arkýři. Arkýře pod úhlem vystupují z domu do prostoru, takže vznikají zajímavé průhledy z jednotlivých místností. Vnitřní prostory domu pomocí těchto arkýřů získávají východní, eventuelně západní světlo a to zejména při severní fasádě objektu.















