Dřevěný opakovatelný dům

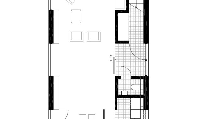
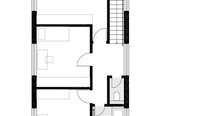
Projekt rodinného domu byl koncipován tak, aby mohl být zopakován. Předpokládá se, že bude osazen do parcely mezi rodinné domy jiného charakteru nebo i mezi domy stejného konceptu s různým materiálem obkladu. Také orientace domu vzhledem ke světovým stranám nebo příjezdové cestě je vždy individuálně řešena. Je možno použít zrcadlového obrazu dispozice.

Comments are closed.