Přihlásit se
Uživatelské jméno nebo e-mail
Uživatelské jméno nebylo zadáno
Heslo
Heslo nebylo zadáno
Pamatovat si mě
Přihlásit se
Zapomněli jste heslo
Registrace
Zprávy
Stavby a projekty
Projekty
Novostavby
Rekonstrukce
Sustainability
Administrativa
Bytové domy
Rodinné domy
Doprava/infrastruktura
Interiéry/design
Komerční stavby
Kultura
Sport
Škola, věda
Veřejný prostor/landscaping
Výroba
Zdravotnictví
Ostatní
Architekti
Newsletter
Časopis STAVBA
Předplatné
Kontakty
Zprávy
Stavby a projekty
Projekty
Novostavby
Rekonstrukce
Sustainability
Administrativa
Bytové domy
Rodinné domy
Doprava/infrastruktura
Interiéry/design
Komerční stavby
Kultura
Sport
Škola, věda
Veřejný prostor/landscaping
Výroba
Zdravotnictví
Ostatní
Architekti
Newsletter
Časopis STAVBA
Předplatné
Kontakty
Kultura
,
Projekty
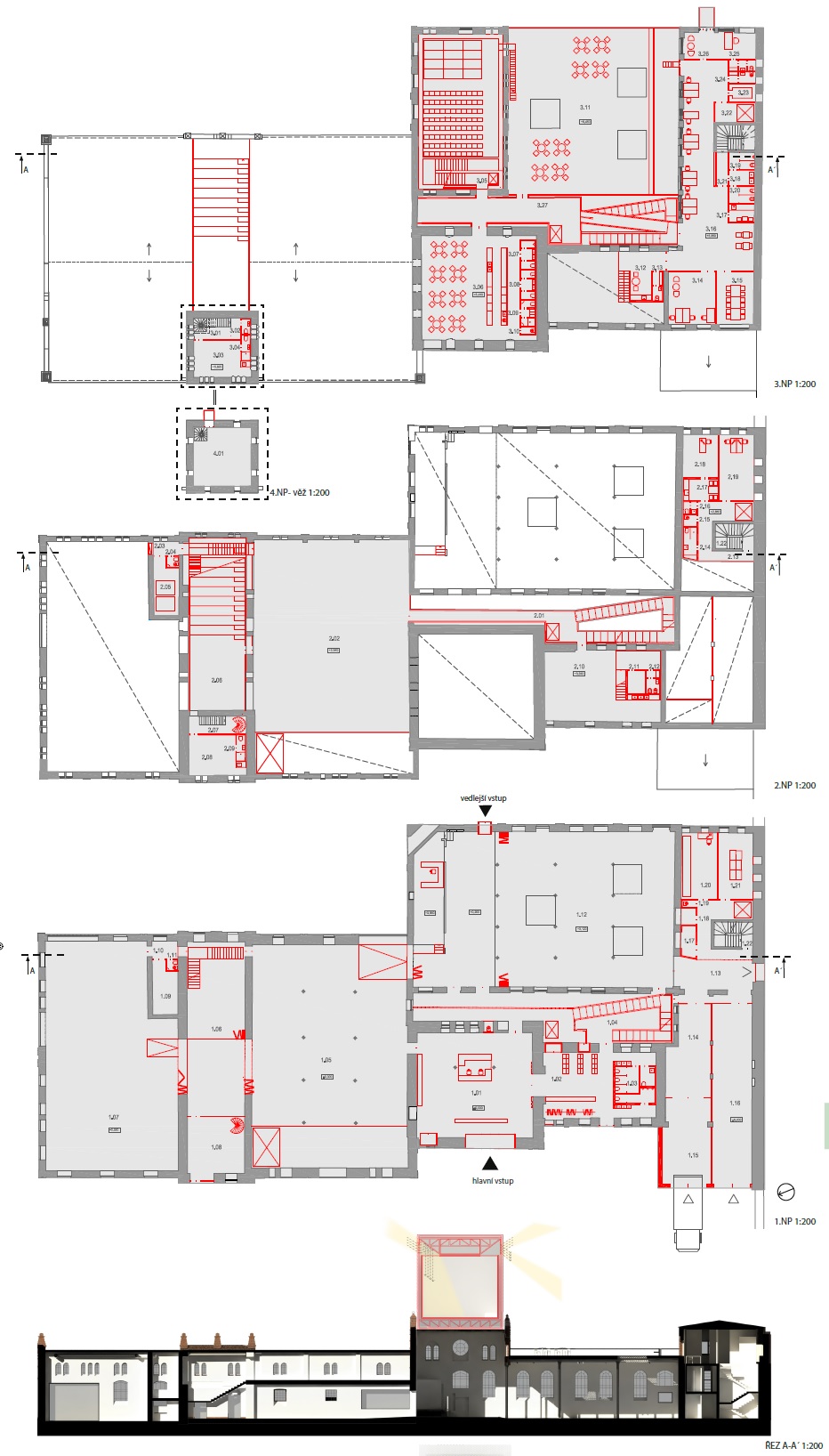
Galerie Plato Ostrava
Autor
×
6. 6. 2017
Předmětem soutěže byl návrh řešení rekonstrukce/rekonverze bývalých jatek včetně případných přístaveb pro účely galerie.
Uživatelské jméno
Heslo
Zapamatovat si mě
Autor
Comments are closed.
Partneři webu
Stavbaweb na Facebooku
Stavbaweb