Mladý kadeřník koupil obchodní prostor v developerském
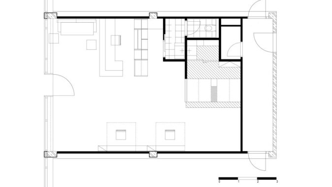
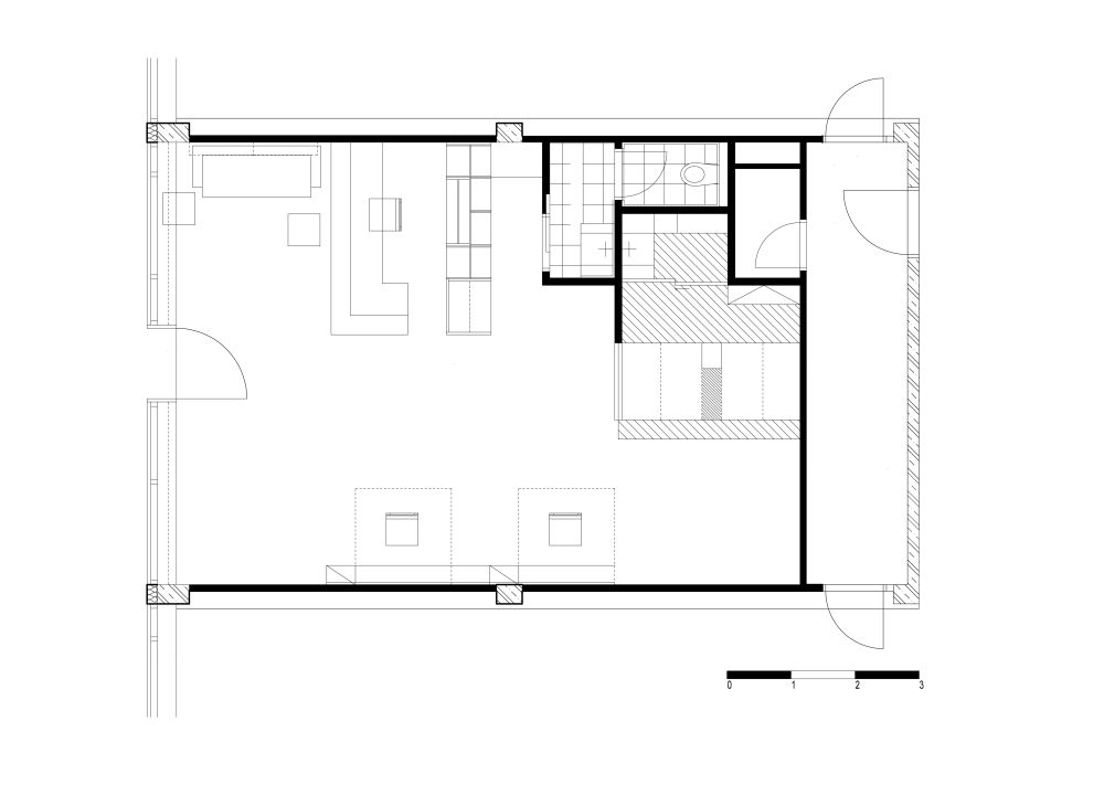
projektu v Olomouci. Požadavkem bylo vytvořit moderní interiér kadeřnictví
se všemi náležitostmi – sociální zařízení, čekárna, šatna, mycí zóna, úložné prostory,
prodej doplňků a samozřejmě kadeřnická křesla.
K prostoru jsme přistoupili se snahou omezit investice do
stavebních zásahů. Vytvořili jsme nutné zázemí, ale ponechali surový betonový
strop. Pracovali jsme s osvětlením, ale vyhnuli se dělení prostoru pevnými
příčkami a minimalizací dveří ve prospěch nábytku. Místnosti vévodí nábytková
stěna, která v sobě integruje recepci, zázemí pro kadeřníky i zákaznice a
odděluje vstup na sociální zařízení.
Šedé plochy betonu a vinylové podlahy doplnil dřevodekor dubu a již
samozřejmá bílá barva.
















