Kanceláře Poetizeru

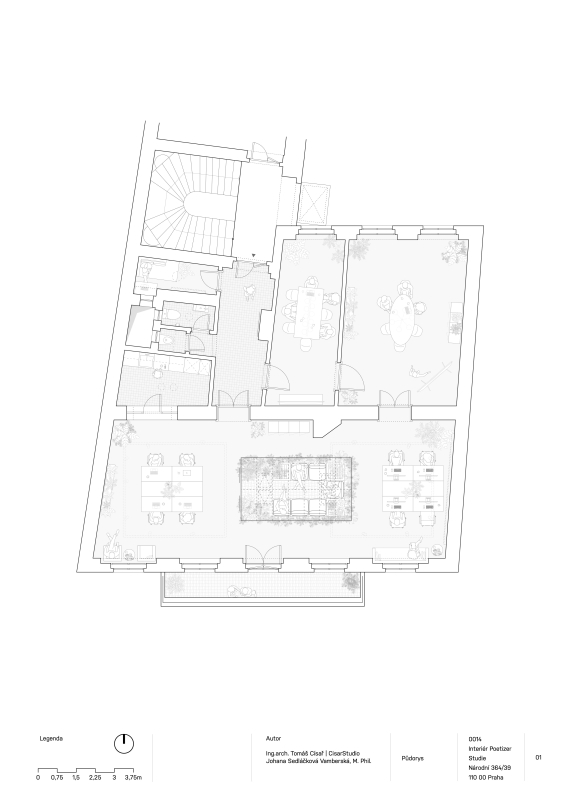
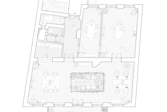
Kancelář Poetizeru o velikosti 150 m² je umístěna ve čtvrtém patře prvorepublikové budovy, která se nachází na pulzující Národní třídě. Interiéry jsou navrženy designérkou Johanou Sedláčkovou Vamberskou a architektem Tomášem Císařem. Koncept vychází ze samotného zaměření a identity Poetizeru, coby minimalistické platformy, která klade důraz na ochranu životního prostředí. Těžištěm příběhu kanceláří je prostor skleníku – divoká džungle, mýtický Eden, prostor, který vyjadřuje koncept divokého myšlení. Myšlení, které je dle Clauda Lévi-Strausse blízké jak našim dávným předkům, tak soudobým básníkům. Toto původně spontánní a asociativní myšlení, které připodobnil k bohatému pralesnímu ekosystému, kladl do kontrastu s již domestikovaným, striktně racionálním myšlením.

Comments are closed.