Tématem letošního ročníku bylo „Dřevo je naše budoucnost“. Soutěž vyhlašuje
Nadace dřevo pro život, která podporuje dřevo jako obnovitelnou surovinu pro
každodenní využití. Cílem soutěže je motivovat studenty vyšších a vysokých
odborných škol, aby (nejen) ve svých školních pracích používali dřevo.
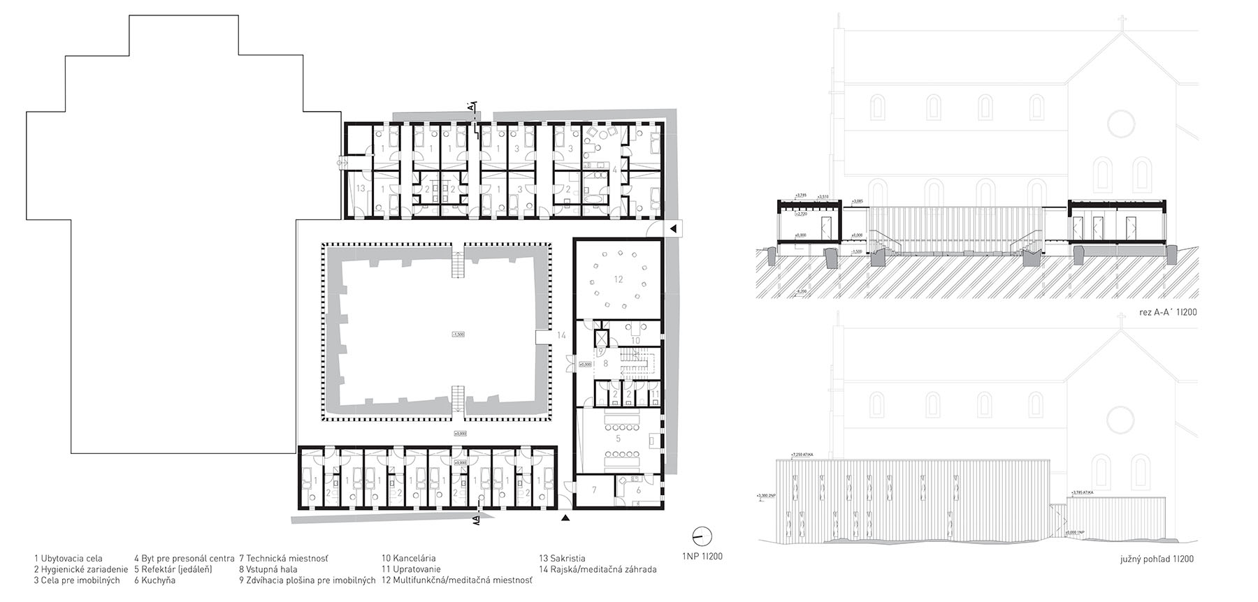
Jakub Kender ve svém projektu Kontemplativního centra, tedy centra pro
rozjímání a modlitbu, umisťuje dřevěný skelet levitující na mikropilotech nad
stěny původního kamenného kláštera, které tím je chrání. Kender vytváří prostor
pro spočinutí a meditaci v objetí přírody s dotekem historie. Dřevo, které pro
stavbu používá, umocňuje atmosféru pro meditaci a podporuje návrat člověka k
přírodě.
Vítězný
projekt vznikl jako studie pro bakalářskou práci, kterou Jakub Kender zpracoval
pod vedením hostujícího pedagoga Zsolta Gunthera a Jana Jakuba Tesaře.
Bakalářskou práci dopracoval Jakub Kender v ateliéru Stempel-Beneš.
Stavebně
technické řešení dřevostavby Kender zpracoval pod záštitou Josefa Šandy.
Popis stavby
Koncept – rešpekt k historickému kontextu miesta, prírodnej krajine a
ich vzájomná syntéza. Konštrukcia dreveného skeletu levituje na
mikropilotách nad stenami pôvodného kamenného kláštora a tým zachováva
jeho pozostatky. Miesto v objatí prírody a dychu histórie ponúka
priestor pre pozastavenie a meditáciu. Materiál stavby umocňuje
atmosféru pre hlboké zamyslenie a zosobňuje návrat človeka k prírode.
Tento potrebný návrat je len jedným z mnohých dôvodov, prečo nazývať
drevo materiálom budúcnosti.
Projekt na stránkách soutěže najdete ZDE.
Doplněno Stavbaweb
Vítězné projekty největší studentské soutěže zaměřené na dřevěné stavění v ČR – Stavby s vůní dřeva 2018 si můžete prohlédnout ZDE.
Do 6. ročníku se přihlásilo 63 studentů z 10 českých a slovenských
fakult, kteří zpracovali 51 soutěžních děl. Z nich bylo odbornou
porotou, veřejností a partnery soutěže vybráno 6 vítězů. Studenti soutěžili ve dvou kategoriích: Dřevěné stavby – malé a Dřevěné stavby – velké. Odměněna byla také jedna hlasující. Soutěž vyhlašuje Nadace dřevo pro život.


















