Jatka – Galerie současného umění PLATO v Ostravě
Projekt vznikl jako výsledek soutěže na konverzi zchátralých starých jatek
v Ostravě pro účely galerie PLATO, městské galerie současného umění. Stěny
jatek byly rozpadlé se spoustou obrovských děr. Začouzené cihlové režné zdivo
svědčilo o průmyslové historii města. Vzali jsme tyto nedostatky jako danou
hodnotu a přidali další vrstvu do historie památkově chráněné budovy. Zachovali
jsme charakter zašpiněného zdiva a oken a současně vyplnili díry ve zdech
soudobým materiálem, přičemž původní dekorace cihlových zdí zůstala zachována.
Princip znovuvytvoření všech chybějících prvků z mikrobetonu jsme využili také při
přestavbě zřícené části jatek.
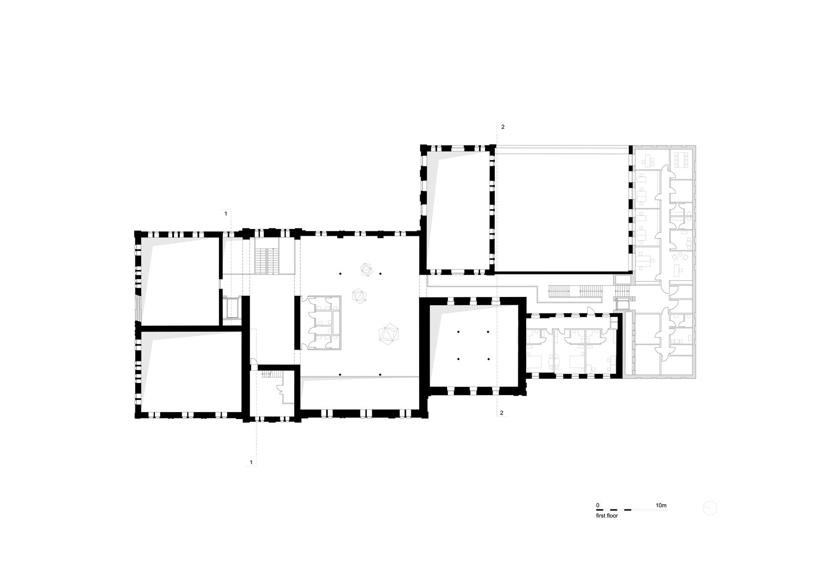
Hlavní idea projektu je založena na zachování funkčnosti otvorů jako zkratek spojujících budovu s městem. Odtud vznikla myšlenka, že by se jejich nové výplně mohly otáčet a otevírat výstavní prostory přímo ven. To poskytlo umělcům a kurátorům zcela nové výstavní možnosti a umění může doslova „vyjít“ do prostoru kolem budovy. Díky mobilitě může kultura ve svém nejširším smyslu nabýt demokratičtějšího charakteru a být přístupnější novému publiku. Venkovní výstavní plocha ve formě tvrzených vodopropustných podlah je obklopena zelení. Většinu okolí tvoří travnaté plochy, květinové louky a stromy, dále malý biotop a podzemní retenční nádrže. Uspořádání zeleně je aluzí na původní umístění pomocných staveb, které k jatkám patřívaly; proměnu lokality dotvářejí (i uvnitř galerie) jedlé plodiny.
Autorská zpráva
Hlavní idea projektu je založena na zachování funkčnosti otvorů jako zkratek spojujících budovu s městem. Odtud vznikla myšlenka, že by se jejich nové výplně mohly otáčet a otevírat výstavní prostory přímo ven. To poskytlo umělcům a kurátorům zcela nové výstavní možnosti a umění může doslova „vyjít“ do prostoru kolem budovy. Díky mobilitě může kultura ve svém nejširším smyslu nabýt demokratičtějšího charakteru a být přístupnější novému publiku. Venkovní výstavní plocha ve formě tvrzených vodopropustných podlah je obklopena zelení. Většinu okolí tvoří travnaté plochy, květinové louky a stromy, dále malý biotop a podzemní retenční nádrže. Uspořádání zeleně je aluzí na původní umístění pomocných staveb, které k jatkám patřívaly; proměnu lokality dotvářejí (i uvnitř galerie) jedlé plodiny.
Autorská zpráva
Foto Juliusz Sokołowski, Jakub Certowicz
PLATO Gallery of Contemporary Art, Ostrava
The project came about as a result of a competition to turn a dilapidated old slaughterhouse in the Czech city of Ostrava into the PLATO Gallery of Contemporary Art.
The walls of the slaughterhouse were dilapidated and battered with huge holes. The soot-reddened brickwork bore witness to the city’s industrial history. We took these deficiencies at face value and added another layer to the history of the building, which has a conservation order. We were allowed to preserve the character of the soiled brick and the windows and fill the holes in the walls with contemporary material while retaining the old ornamentation of the brick walls. We also used the principle of recreating all non-existent elements of the building from micro-concrete to rebuild the collapsed section of the slaughterhouse.
The main idea of the project is based on preserving the functionality of the openings as shortcuts connecting the building with the city. Hence the idea that their new infills could rotate and open the exhibition rooms directly to the outside. This has provided artists and curators with entirely new exhibition possibilities and allows art to literally ‚go out‘ into the space around the building. Mobility has meant that culture in its broadest sense can take on a more democratic character, as well as being accessible to new audiences.
The outdoor display space in the form of hardened water-permeable floors is surrounded by greenery. The majority of the square is made up of grass, flower meadows and trees, along with a small pond and underground retention tanks. The layout of the greenery alludes to the location of the buildings that originally supported the slaughterhouse, and edible crops, also inside the gallery, complete the transformation of the site.
Architect’s report
Místo stavby / Building location: PLATO, městská galerie současného umění, Porážková 26, Ostrava
Autoři / Architects: Robert Konieczny, Michał Lisiński, Dorota Żurek / Robert Konieczny KWK Promes
Autorská spolupráce / Author cooperation: Tadeáš Goryczka, Marek Golab-Sieling
Spolupráce / Cooperation: Agnieszka Grabowska, Krzysztof Kobiela, Adrianna Wycisło, Mateusz Białek, Jakub Bilan, Wojciech Fudala, Katarzyna Kuzior, Damian Kuna, Jakub Pielecha, Magdalena Orzeł – Rurańska, Elżbieta Siwiec, Anna Szewczyk, Kinga Wojtanowska
Řešení interiéru / Interior design: Robert Konieczny KWK Promes
Vybavení interiéru, mobiliář / Interior equipment: CCEA MOBA Praha / Yvette Vašourková
Návrh venkovních úprav a řešení výsadby zeleně / Outdoor adjustment: Robert Konieczny KWK Promes, Denisa Tomášková
Statika, stavební řešení / Structural and construction design: MS – Projekce / Jaroslav Habrnal, Petr Hanko, Pavel Šlancar, Martina Volná
Orientační systém budovy / Building orientation system: TUKEJ / Justyna Kucharczyk, Agnieszka Nawrocka
Generální dodavatel stavby / General construction contractor: Zlínstav
Generální dodavatel venkovních úprav / General contractor of outdoor adjustments: K2 stavební Moravia
Investor: statutární město Ostrava
Zastavěná plocha / Built-up area: 2154 m2
Užitná plocha / Usable area: 3601 m2
Plocha pozemku / Plot area: 11 417 m2
Obestavěný prostor / Volume: 18 700 m3
Projekt / Design phase: 2017–2019
Realizace / Implementation: 2020–2022
Vyšlo v časopise Stavba 1/2023
PLATO Gallery of Contemporary Art, Ostrava
The project came about as a result of a competition to turn a dilapidated old slaughterhouse in the Czech city of Ostrava into the PLATO Gallery of Contemporary Art.
The walls of the slaughterhouse were dilapidated and battered with huge holes. The soot-reddened brickwork bore witness to the city’s industrial history. We took these deficiencies at face value and added another layer to the history of the building, which has a conservation order. We were allowed to preserve the character of the soiled brick and the windows and fill the holes in the walls with contemporary material while retaining the old ornamentation of the brick walls. We also used the principle of recreating all non-existent elements of the building from micro-concrete to rebuild the collapsed section of the slaughterhouse.
The main idea of the project is based on preserving the functionality of the openings as shortcuts connecting the building with the city. Hence the idea that their new infills could rotate and open the exhibition rooms directly to the outside. This has provided artists and curators with entirely new exhibition possibilities and allows art to literally ‚go out‘ into the space around the building. Mobility has meant that culture in its broadest sense can take on a more democratic character, as well as being accessible to new audiences.
The outdoor display space in the form of hardened water-permeable floors is surrounded by greenery. The majority of the square is made up of grass, flower meadows and trees, along with a small pond and underground retention tanks. The layout of the greenery alludes to the location of the buildings that originally supported the slaughterhouse, and edible crops, also inside the gallery, complete the transformation of the site.
Architect’s report
Místo stavby / Building location: PLATO, městská galerie současného umění, Porážková 26, Ostrava
Autoři / Architects: Robert Konieczny, Michał Lisiński, Dorota Żurek / Robert Konieczny KWK Promes
Autorská spolupráce / Author cooperation: Tadeáš Goryczka, Marek Golab-Sieling
Spolupráce / Cooperation: Agnieszka Grabowska, Krzysztof Kobiela, Adrianna Wycisło, Mateusz Białek, Jakub Bilan, Wojciech Fudala, Katarzyna Kuzior, Damian Kuna, Jakub Pielecha, Magdalena Orzeł – Rurańska, Elżbieta Siwiec, Anna Szewczyk, Kinga Wojtanowska
Řešení interiéru / Interior design: Robert Konieczny KWK Promes
Vybavení interiéru, mobiliář / Interior equipment: CCEA MOBA Praha / Yvette Vašourková
Návrh venkovních úprav a řešení výsadby zeleně / Outdoor adjustment: Robert Konieczny KWK Promes, Denisa Tomášková
Statika, stavební řešení / Structural and construction design: MS – Projekce / Jaroslav Habrnal, Petr Hanko, Pavel Šlancar, Martina Volná
Orientační systém budovy / Building orientation system: TUKEJ / Justyna Kucharczyk, Agnieszka Nawrocka
Generální dodavatel stavby / General construction contractor: Zlínstav
Generální dodavatel venkovních úprav / General contractor of outdoor adjustments: K2 stavební Moravia
Investor: statutární město Ostrava
Zastavěná plocha / Built-up area: 2154 m2
Užitná plocha / Usable area: 3601 m2
Plocha pozemku / Plot area: 11 417 m2
Obestavěný prostor / Volume: 18 700 m3
Projekt / Design phase: 2017–2019
Realizace / Implementation: 2020–2022
Vyšlo v časopise Stavba 1/2023



































sqělý nápad, ale potřebovalo by to více nové odvahy, SNAD…..