(ČTK) – Tři roky trvající bourání, stavění a stěhování skončilo slavnostním
otevřením nové Filozofické fakulty Masarykovy univerzity v Brně v ulici
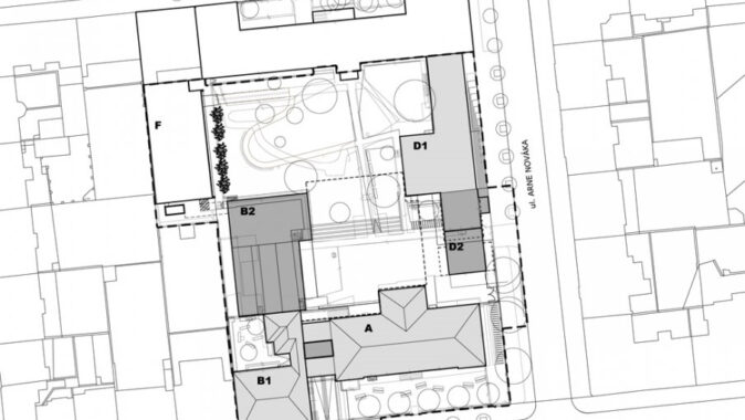
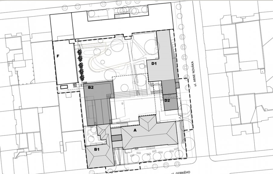
Arne Nováka. Rekonstrukce budov A, B1 a demolice budovy B2 s výstavbou
nové stály 485 miliónů korun, řekl ČTK tajemník fakulty Ivo Jurtík.















