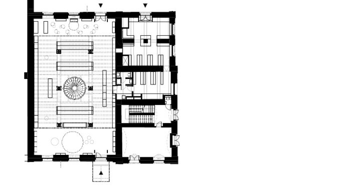
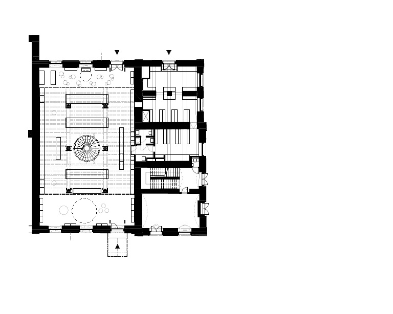
V prostorách jedné z továrních hal Holešovického pivovaru
vznikl na 500 metrech čtverečních social store zaměřený na prodej fotoaparátů a
příslušenství. Dle zvoleného konceptu maximální kontinuity prostoru, jeho
přehlednosti a využití celého objemu, tj. i výšky, jsme postupovali z návrhu do
realizace, která obsahovala dvě fáze. Stavební, při které byly odhaleny všechny
nosné konstrukce, odstraněny podlahy a sádrokartony, otlučeny omítky a zrušeno
schodiště, které vedlo napříč prostorem. Nově vzniklo centrální točité kovové
schodiště jako ústředním prvek prostoru a dva dřevěné boxy, která v sobě kryjí
zázemí a tiskové centrum. Podlahy jsou v přízemí betonové, v patře potažené
linoleem, dále byly provedeny černé požární nátěry odhalených kovových
konstrukcí, prosklená stěna a zábradlí. Stěny byly ponechány v otlučeném stavu
s bílým nástřikem, lokálně byly obloženy dubovými prkny, případně bělenou
překližkou.
Druhou fází byla realizace interiéru: nábytek z dubového masivu, bělené překližky, černý kov a drátěné pletivo. Domimantou hlavního prodejního prostoru v přízemí jsou šestimetrové stoly z dubových hranolů a čtrnáctimetrová vitrína s fotoaparáty. Vrchní patro slouží jako ateliér, tiskové centrum a doplňková prodejní plocha.
Druhou fází byla realizace interiéru: nábytek z dubového masivu, bělené překližky, černý kov a drátěné pletivo. Domimantou hlavního prodejního prostoru v přízemí jsou šestimetrové stoly z dubových hranolů a čtrnáctimetrová vitrína s fotoaparáty. Vrchní patro slouží jako ateliér, tiskové centrum a doplňková prodejní plocha.
















