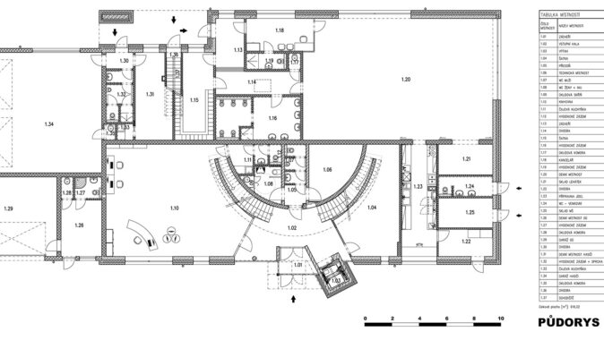
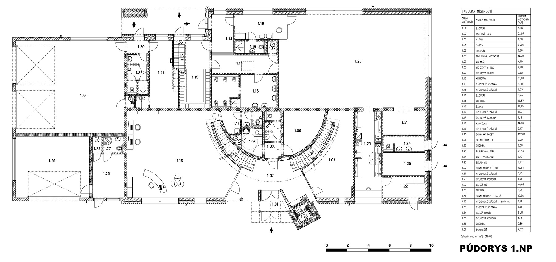
Multifunkční dům se nachází v srdci obce Litvínovice,
v těsném sousedství vodní plochy. Je v něm umístěna kancelář obecního
úřadu, mateřská škola, knihovna, hasičská zbrojnice s garáží požárních
vozidel a víceúčelový sál s přilehlým foyer. Součástí objektu je i garáž
pro uskladnění komunální techniky s drobnou dílnou a také archiv,
situovaný nad kancelářemi.
Centrálním prvkem jsou dvě oblouková schodiště, která
návštěvníky budovy přivádí z přízemí do samotného centra dění v patře. Zde
se ve víceúčelovém sálu mohou konat kulturní představení, vernisáže,
nejrůznější výstavy, přednášky, školení či zasedání obecního úřadu. Sál lze
prostřednictvím posuvných stěn propojit s foyer, čímž se jeho využitelnost
dále zvyšuje. Prostorové řešení v prvním nadzemním podlaží umožňuje přímé
propojení mateřské školky s přilehlou zahradou přes prosklené stěny. Veřejná
knihovna je hned vedle vstupu a je zajištěna její snadná dosažitelnost pro
všechny občany. Hasičská zbrojnice v prvním nadzemním podlaží slouží
místnímu záchrannému sboru. Multifunkční dům v Litvínovicích je stavbou
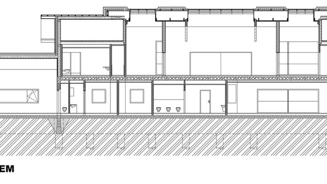
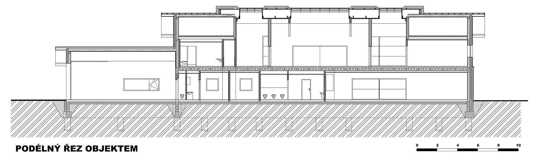
obdélníkového půdorysu s obloukovým zastřešením, která je převážně
dvoupodlažní. Jeho dominantu v průčelí tvoří výtahová šachta
s obkladem ze dřeva a hodinami v horní části. Pro fasádu byl
v úrovni prvního nadzemního podlaží zvolen obklad z gabionů a
v úrovni druhého nadzemního podlaží obklad ze dřeva.
V návrhu byl kladen důraz na
kvalitu vnitřního prostředí. Denní osvětlení je zajištěno okny ve fasádě i
pásovým světlíkem ve střeše. Detailně byly navrženy akusticky účinné plochy
v interiéru. Kvalitu vnitřního prostředí zvyšuje i nucená výměna vzduchu.
Dbáno bylo taktéž na zajištění vysokého energetického standardu budovy.
Konstrukční systém multifunkčního domu v Litvínovicích je stěnový
s obvodovým zdivem z vápenopískových kvádrů tloušťky 240 mm,
doplněných o zateplovací systém a fasádní obklad. Použité prvky z nabídky
firmy KM Beta jsou Sendwix 8 DF-LP AKU, a to na masívní prvek v obvodovém zdivu
kvůli akustickému odstínění uličního ruchu a zvláště kvůli kotvení gabionových
košů s kamenivem, dále 2 DF-LD pro vazbu zdiva tl. 240 mm a dále překlady
Sendwix 8 DF 100, 125 a 150. Zdivo je zakládané na maltu Profimix ZM 920 a
zděné na tenkovrstvou maltu (lepidlo) Profimix ZM 921 (Lepidlo SX).
Vnitřní nosné zdivo je
z keramických cihelných bloků. Zastropení nad prvním nadzemním podlažím je
z předpjatých železobetonových panelů. Konstrukce krovu je z převážné
části tvořena lepenými obloukovými dřevěnými vazníky, v části půdorysu
kombinovanými s ocelovými příhradovými vazníky. Překlady nad otvory jsou
řešeny jako systémové, případně železobetonové.
Investor stavby: Obec Litvínovice
Autor: Ing. Milan Špulák / JPS J.Hradec, s. r. o.
Generální dodavatel: ARSTAV, s. r. o.
Projekt: 5/2014
Realizace: 6/2014–9/2015
Zastavěná plocha: 724 m2
Obestavěný prostor: 5190 m2
Realizační náklady: 25 000 000 bez DPH
Fotografie: Archív autora projektu
publikováno v časopise Stavba č. 2/2016, str. 62-63



















