Atelier Novotný & Koňata & Zmek na Fakultě
architektury ČVUT
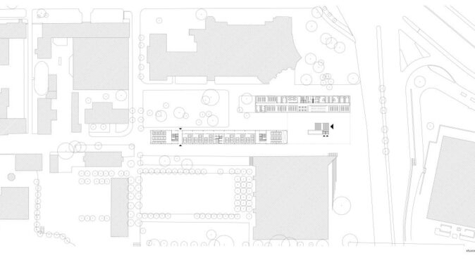
Rozsáhlý campus Technické
university prakticky v centru Drážďan je zářezem čtyřproudové komunikace
rozdělen na dvě poloviny: historickou z počátku dvacátého století a poválečnou.
Fakulta architektury (1200 studentů) nemá v současnosti odpovídající budovu a
působí v administrativní budově mimo areál, respektive na jeho okraji v
novodobé, východní části.
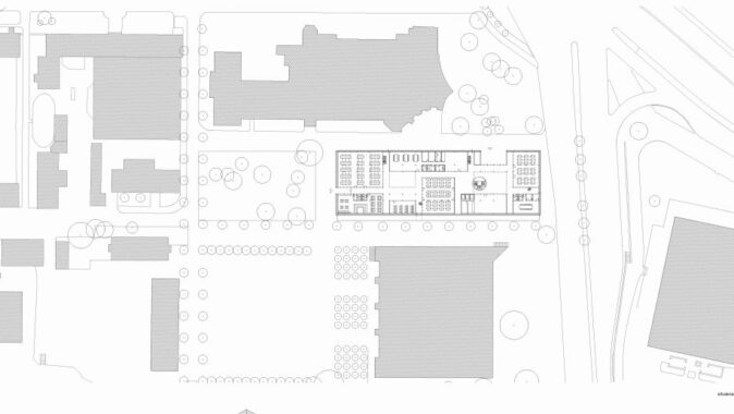
Místo pro nostavbu bylo vybráno v pozici, kterou uvažoval velkorysý územní plán
již v roce 1910. Pozemek je umístěn v blízkosti centrálního náměstí Fritz Foerster
Platz na okraji historické části kampusu, tvořené sestavou převážně cihlových budov,
mezi budovami Beyer Bau z roku 1912 (v současnosti Fakulta pozemního
stavitelství) a novou budovou centrálních poslucháren. Úzká parcela s poměrně
dramatickým terénem a se vzrostlými stromy je částečně zastavěná provizorními
objekty dílen.
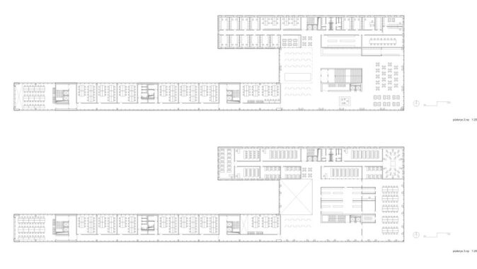
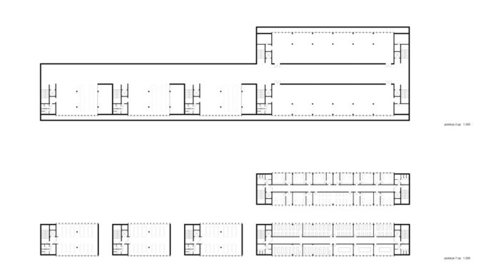
Soutěžní podmínky stanoví podrobný stavební program, navržený ve dvou
prostorových variantách (horizontální a vertikální) – na soutěžících je
ponechána volba jednoho z nich. Program bohužel nepředstavil školu architektury
jako „metodu práce“, takže vedle otázky: „Co je vlastně škola architektury?“,
jsme se ptali: „Jak architekturu vyučovat?“.
Zadaný stavební program se podařilo naplnit, ale to: „Co je jeho
obsahem?“, zůstalo často pouze naznačeno.
Hodnocení poroty
Jedno zadání – řešení školy architektury v Drážďanech, stejná prezentace,
stejně pojednané vkládací modely, stejná portfolia. Vše je přehledné a
jednotlivé práce je možné mezi sebou snadno porovnávat, podobně jako v
architektonické soutěži. Postupně si vkládáme jednotlivé modely do širšího
kontextu, studujeme portfolia a porovnáváme projekty mezi sebou. Není zde nic
nesrozumitelného. Zvolený úkol pro celý ateliér efektně prověřil spoustu
různých variant na jedno téma.

































































