Nová budova fakulty architektury v Drážďanech

Atelier Novotný & Koňata & Zmek na Fakultě architektury ČVUT

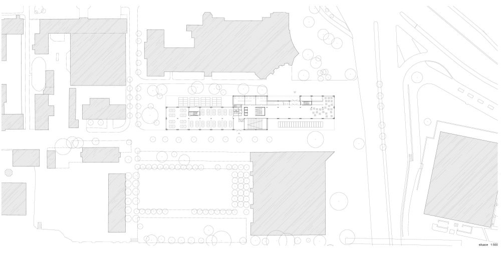
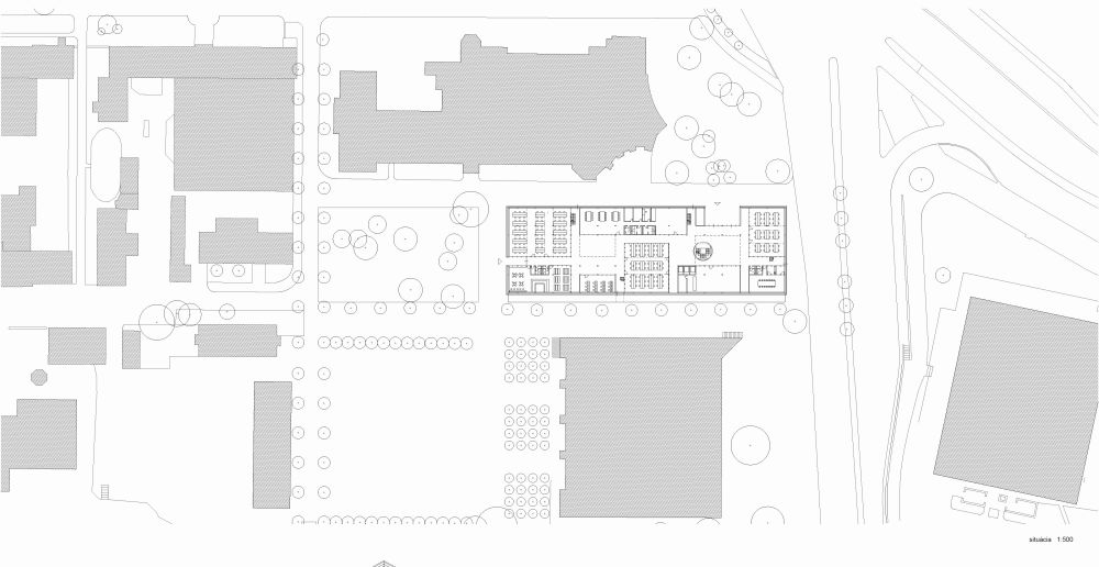
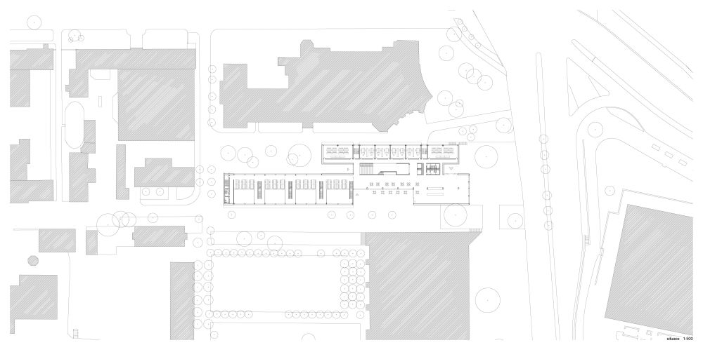
 Rozsáhlý campus Technické university prakticky v centru Drážďan je zářezem čtyřproudové komunikace rozdělen na dvě poloviny: historickou z počátku dvacátého století a poválečnou. Fakulta architektury (1200 studentů) nemá v současnosti odpovídající budovu a působí v administrativní budově mimo areál, respektive na jeho okraji v novodobé, východní části.
Místo pro nostavbu bylo vybráno v pozici, kterou uvažoval velkorysý územní plán již v roce 1910. Pozemek je umístěn v blízkosti centrálního náměstí Fritz Foerster Platz na okraji historické části kampusu, tvořené sestavou převážně cihlových budov, mezi budovami Beyer Bau z roku 1912 (v současnosti Fakulta pozemního stavitelství) a novou budovou centrálních poslucháren. Úzká parcela s poměrně dramatickým terénem a se vzrostlými stromy je částečně zastavěná provizorními objekty dílen.
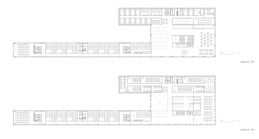
Soutěžní podmínky stanoví podrobný stavební program, navržený ve dvou prostorových variantách (horizontální a vertikální) – na soutěžících je ponechána volba jednoho z nich. Program bohužel nepředstavil školu architektury jako „metodu práce“, takže vedle otázky: „Co je vlastně škola architektury?“, jsme se ptali: „Jak architekturu vyučovat?“.  Zadaný stavební program se podařilo naplnit, ale to: „Co je jeho obsahem?“, zůstalo často pouze naznačeno.  

Hodnocení poroty
Jedno zadání – řešení školy architektury v Drážďanech, stejná prezentace, stejně pojednané vkládací modely, stejná portfolia. Vše je přehledné a jednotlivé práce je možné mezi sebou snadno porovnávat, podobně jako v architektonické soutěži. Postupně si vkládáme jednotlivé modely do širšího kontextu, studujeme portfolia a porovnáváme projekty mezi sebou. Není zde nic nesrozumitelného. Zvolený úkol pro celý ateliér efektně prověřil spoustu různých variant na jedno téma.

Comments are closed.