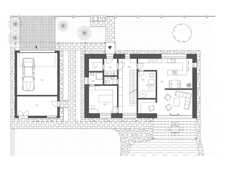
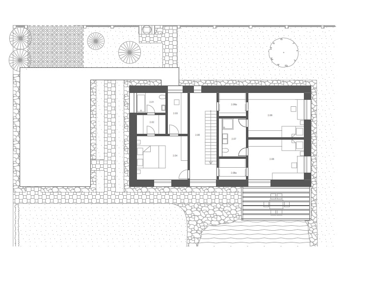
Bakalářská práce Josefa Hoffmanna byla na podzim oceněna v
soutěži Český energetický a ekologický projekt, stavba a inovace roku. Návrh
rodinného domu v pasivním standartu je sloučený se zásadami trvale udržitelného
rozvoje, byla tu využita nová řešení z oblasti technologií výstavby a
technického vybavení.
















