Přihlásit se
Uživatelské jméno nebo e-mail
Uživatelské jméno nebylo zadáno
Heslo
Heslo nebylo zadáno
Pamatovat si mě
Přihlásit se
Zapomněli jste heslo
Registrace
Zprávy
Stavby a projekty
Projekty
Novostavby
Rekonstrukce
Sustainability
Administrativa
Bytové domy
Rodinné domy
Doprava/infrastruktura
Interiéry/design
Komerční stavby
Kultura
Sport
Škola, věda
Veřejný prostor/landscaping
Výroba
Zdravotnictví
Ostatní
Architekti
Newsletter
Časopis STAVBA
Předplatné
Kontakty
Zprávy
Stavby a projekty
Projekty
Novostavby
Rekonstrukce
Sustainability
Administrativa
Bytové domy
Rodinné domy
Doprava/infrastruktura
Interiéry/design
Komerční stavby
Kultura
Sport
Škola, věda
Veřejný prostor/landscaping
Výroba
Zdravotnictví
Ostatní
Architekti
Newsletter
Časopis STAVBA
Předplatné
Kontakty
Projekty
,
Rodinné domy
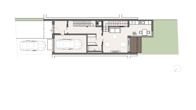
Projekt rekonstrukce rodinného domu
Autor
×
3. 10. 2018
Dům je umístěn v okrajové části města na vyvýšeném místě s pěknými výhledy na dominanty Brna i okolní přírodu. Řadová zástavba typových rodinných domů leží na mírně svažitém terénu.
Uživatelské jméno
Heslo
Zapamatovat si mě
Autor
Comments are closed.
Partneři webu
Stavbaweb na Facebooku
Stavbaweb