Recenze knihy COLLECTIVE HOUSING / HROMADNÉ BYDLENÍ

KAROLINA VOJÁČKOVÁ
COLLECTIVE HOUSING / HROMADNÉ BYDLENÍ
A SPATIAL TYPOLOGY / SYSTEMATIKA PROSTOROVÝCH TYPŮ
Michal Kohout, David Tichý, Filip Tittl

Neuteklo mnoho času od chvíle, kdy Michal Kohout se svým týmem vydali publikaci „Můj dům, naše ulice“, která se věnovala koordinované výstavbě individuálního bydlení. A již nám předkládají další, zaměřenou na detail prostorové struktury vnitřních dispozic a vztahy jednotlivých bytových jednotek v rámci celku. Jak název sám naznačuje, „Hromadné bydlení / Systematika prostorových typů“, kniha pojednává o obytných stavbách, které slouží pro větší počty nájemníků či vlastníky bytů. První publikace se věnovala zkoumání efektivní prostorové sklady individuálních bytových domů a tomu, jak tato kompozice ovlivňuje svůj kontext, vztah k ulici nebo pocit soukromí. I zde byla naznačena jistá systematika, která by pomáhala developerovi, vedení obce nebo kupci nemovitosti orientovat se v problematice a volit správné řešení. Celkový obsah byl však více obecný a snažil se naplnit i celý společensko-legislativní rámec. „Systematika prostorových typů“ se sice také snaží nastínit společenský kontext, ale vzápětí přechází na tvrdou analytickou práci, kde je každý typ jednotlivě zkoumán a zařazen v systému dle typu, formy a dispozice. Vše je pak doplněno ještě o analýzu hierarchie míry soukromí. Následuje pak více než padesát příkladů konkrétních realizací od předních českých i zahraničních architektů. Každý objekt je podroben prostorovému a hierarchickému rozboru vnitřní skladby. Příklady jsou dle svého charakteru zařazeny do zmíněné systematiky. Z každé struktury je pak ještě předveden příklad typického bytu. Půdorysy jsou doplněny o barevnou škálu, která hierarchizuje soukromí jednotlivých prostorů. Kniha se nesnaží obsáhnout celou historii hromadného bydlení, ani vývoj stavebního typu. Její ambicí je přispět ke kritickému čtení a komplexnímu vnímání v souvislostech. Typologie je zde vnímána jako základní prostorová konfigurace staveb.

Stavební typ především reaguje na měnící se potřeby společnosti. Stabilita ve společnosti, se zrcadlí i v architektonické tvorbě. Typ díky moderní architektuře a rozvoji průmyslu přešel z typologie (nauky o typech) do typizace. Architektonický objekt by měl ze své podstaty být opakovatelný. Průmyslové procesy tak nastavily nový vztah mezi výrobou a objektem. Pokud objekty dovolí mluvit o jejich jedinečnosti, ale i o jejich společných vlastnostech, pak má program typu své opodstatnění.

Architekt identifikuje typ, který by mu mohl pomoct vyřešit problém v kontextu, který aktuálně zkoumá, přitom identifikace typu vyplývá z vazby na společnost. Dále pak s typem pracuje jako s rámcem, v něm operuje se změnou dle aktuálních potřeb. Formální struktura se pak redukuje na abstraktní geometrický plán, který zároveň udržuje a definuje vnitřní logiku forem. Fragmentace je pak průvodním znamením typového řešení, jež umožnuje modifikaci a odklon od průměru. Projekční proces tak tkví v uvádění prvků typologie do přesného stavu. V takovém objektu se pak snoubí jak prvky typu, který slouží jako průměr vzorů, tak odklon k individuálnímu řešení, které pak z objektu tvoří jedinečné dílo. Typ je pak spíš v pozici základního pracovního nástroje, ale pouze jednoho z mnoha. Zároveň se v rámci svého vývoje neustále podrobuje zlepšování a musí reagovat na aktuální potřeby. Typ ve své podstatě stabilizuje společnost a dává možnost přiměřeným tempem absorbovat změnu. A to je dobře patrné u tak konzervativní části života, jako je bydlení.

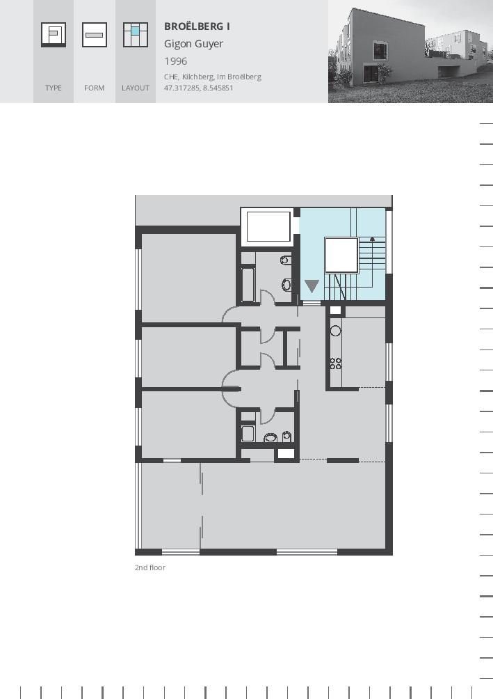
Celá publikace staví na filosofii, že bydlení úzce souvisí s provázaností životů. V současnosti se již nemůžeme zamýšlet jen abstraktně nad formou,  ale musíme se zabývat i dlouhodobou udržitelností a efektivním využíváním technologií. Autoři zároveň polemizují s možností organizovaného bydlení v prostředí západní tržní ekonomiky a individuální svobody. Zároveň cítí, že právě v českém prostředí je toto téma zatím málo prozkoumané, což je patrné i např. z absence vhodného názvosloví. Celá systematika by měla k zlepšení situace přispět. Jednoduchou formou popisu a grafických schémat se snaží popsat hlavní charaktery jednotlivých řešení a k nim jejich klady i zápory. Tak aby si každý jasně udělal představu o náročnosti každého typu. Analýza se pohybuje na dvou úrovních. První je měřítková úroveň budov, druhá pak úroveň bytu. Obě mají podsekce dělené dle typu, formy a dispozice. Přičemž typ se dá chápat jako charakter skladebné jednotky a její provázanost s okolím, forma jako prostorové uspořádání a dispozice jako půdorysná skladba. Tato obecná analýza má své grafické značky, které se pak objevují i v příkladové části, takže si člověk může každý typ spojit s konkrétní realizací. Realizace jsou doplněné o základní informace o autorech a o rok vzniku. Ten nám pak může napovědět něco o tehdejších společenských požadavcích na bydlení i o stylu života. Ještě důležitější je však malá situace u každého domu, kde je patrné jeho zapojení a vztah k okolní urbanistické struktuře. Kontext a úroveň veřejného prostranství jsou zásadním tématem, které následně ovlivňuje úspěšnost stavební formy. O tomto faktu, jsme se v našem kontextu mohli sami mnohokrát přesvědčit v prostředí panelových sídlišť. Větší soubory mají v příkladové části i půdorysně naznačený charakter veřejného prostoru. V datech pak nechybí ani podlahová plocha(?) a informace o parkingu. Vše je vyhotovené ve stejném měřítku, takže si i nezkušené oko můžeš udělat jednoduché srovnání.

Autoři opět předvedli velký zápal a neuvěřitelné množství mravenčí analytické práce. To je nutno kladně ohodnotit, i když popisy jednotlivých typů a forem jsou pro zjednodušení velmi stručné. I tak se dá mluvit o úctyhodné komplexnosti. Jako velké plus oproti předcházející publikaci je třeba zmínit dvoujazyčnost, která publikaci posouvá za naše hranice. Tím by se kniha mohla přidat i do mezinárodního diskurzu o bytové výstavbě. Kdyby ale inspirovala místní stavitele k hlubší úvaze a měla reálný dopad na českou stavební kulturu, možná by pak v další podobné publikaci, nemusela být drtivá většina příkladů ze zahraničí.

Hromadné bydlení – Systematika prostorových typů
Autoři: Michal Kohout, David Tichý, Filip Tittl
Autorská spolupráce: Šárka Doležalová
Grafický design: Šárka Doležalová, Kateřina Koňata Dolejšová
Překlad: Lucie Mertlíková
Vydavatel: České vysoké učení technické v Praze, Fakulta architektury, Ústav nauky o budovách
Datum vydání: 2015

Publikováno v časopise Stavba č. 2/2016, str. 4-5

Související články:
Hromadné bydlení – Systematika prostorových typů 4.1.2016


Comments are closed.