Rekonstrukce domu u Brna

Původní dům z 50. let minulého století je situován na okraji města v klidné ulici tvořené obdobnými samostatně stojícími domy s převážně sedlovou střechou. Pozemek je svažitý s převýšením 3,5 m z úrovně ulice k nejvyššímu místu zahrady při východní hraně parcely. Podzemní podlaží domu bylo původně využívané jako technické s garáží se světlou výškou místností 2,15 m. V 1np a 2np se nacházely obytné místnosti, hygienické zázemí a doplňkové místnosti. Zbývající část v podkroví byla nevyužívána.

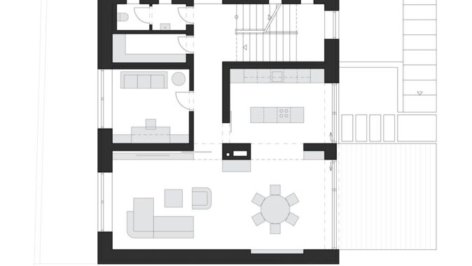
Prvotním plánem stavebních úprav bylo „očištění domu“ od nekoncepčních přístaveb na kompaktnější objem a zjednodušení jeho celkového výrazu. Zásadními navrženými stavebními změnami bylo odstranění přístavby se vstupním schodištěm, snížení podlahy podzemního podlaží o 0,5 metru pro jeho lepší využitelnost na obytné místnosti a úprava tvaru střechy. Nosné konstrukce byly v nutné míře zachovány, v obvodových a vnitřních nosných stěnách i vnitřních příčkách byly přebourány otvory. Vnitřní schodiště včetně stropu v přilehlé chodbě bylo odstraněno a nahrazeno novým pohodlnějším schodištěm.

Součástí úprav domu je návrh celého pozemku. K obojímu je přistupováno rovnocenně a na vzájemné fungování vnitřní dispozice a zahrady je kladen velký důraz. Nejzásadnějšími úpravami v zahradě za domem je dorovnání terénu na úroveň podlahy v 1np. Což umožnilo přímé propojení obytného podlaží se zahradou oproti původnímu stavu, kdy se do zahrady vstupovalo obcházením domu přes vstupní halu se schodištěm.

Řešení fasád je založeno na hře s kompozicí oken a na práci se základními materiály. Volba velikosti a umístění oken odráží funkční využití interiérových prostor a kombinuje dva principy. V obytných místnostech jsou navržena velká prosklení. Tam, kde je to možné, je interiér s exteriérem propojen díky posuvným dveřím – HS portálům, v ostatních místnostech mají okna klasicky vysoký parapet.

V místnostech zázemí domu a prostoru schodiště jsou zvolena menší čtvercová okna rozmístěná na fasádě ve zdánlivě nahodilé kompozici odrážející pohyb po schodišti, na kterém zároveň poskytují rozmanité výhledy z interiéru.

Zvolené materiály fasád kombinují omítané a dřevěné plochy. Bílá omítka je doplněna svislým dřevěným obkladem z prken, a to lokálně v místě předzahrádky do ulice, v místě vstupu v návaznosti na dřevěný přístřešek a v části třetího podlaží, která tak vytváří samostatnou hmotu čnící nad hlavní střechou domu. Střecha je plechová, falcová, v šedém odstínu stejně jako další plechové prvky. Rámy oken a vstupních dveří jsou dřevěné. Venkovní opěrné zdi a podezdívky uličního oplocení jsou z pohledového betonu, samotné oplocení je kovové, mimo dřevěnou terasu jsou betonové i ostatní zpevněné plochy.
Autorská zpráva  

Autoři: JV Architekt / Michaela Vokřálová, Jiří Vokřál
Fotografie: Lukáš Němeček
Statika: Václav Přikryl
PBŘS: Ludmila Plagová
Technika prostředí: TPS projekt
Zahradní a sadové úpravy: Klára Stachová

Základní údaje:
Celková užitná plocha:           271,3 m2
Zastavěná plocha domu:       138,0 m2
Parkovací přístřešek:               58,0 m2
Zastavěná plocha celkem:     196,0 m2
Obestavěný prostor domu:    1 300 m3
Projekt: 2017–2018
Realizace: 2019–2023 

Comments are closed.