Rekonstrukce domu v Maloměřicích

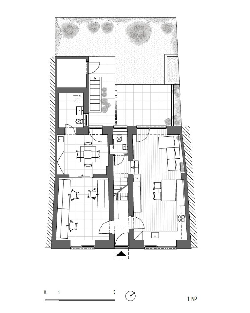
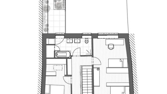
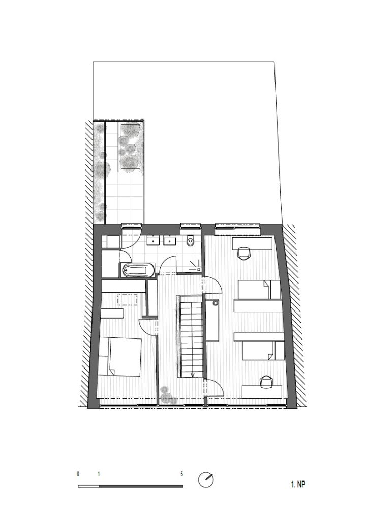
Navrhli jsme stavební úpravy a nástavbu řadového rodinného domu. Jeho původní stav byl nevyhovující – odstranili jsme poddimenzovaný strop, kvůli vlhkosti byly veškeré stěny podřezány, podlahy odkopány a provedeny nově. Částečně byly posíleny i základy. Nad přízemím je nový železobetonový strop pro celkové ztužení konstrukce vyzděné z nepálených cihel. Patrová nástavba je kombinací cihelného zdiva po obvodu objektu a dřevěných hrázděných stěn vyplněných dusanou hlínou uvnitř dispozice. Vše je uzavřeno pohledovým dřevěným trámovým stropem s vegetační střechou.
Dispozice v přízemí je nyní rozdělena na dvě části, z nichž jednu využíváme jako kancelář. V celém domě jsou hliněné omítky.

Autorská zpráva
Foto: Jaroslav Mareš


Autoři: Darja Kafková, Ondřej Kafka

Comments are closed.