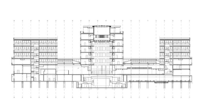
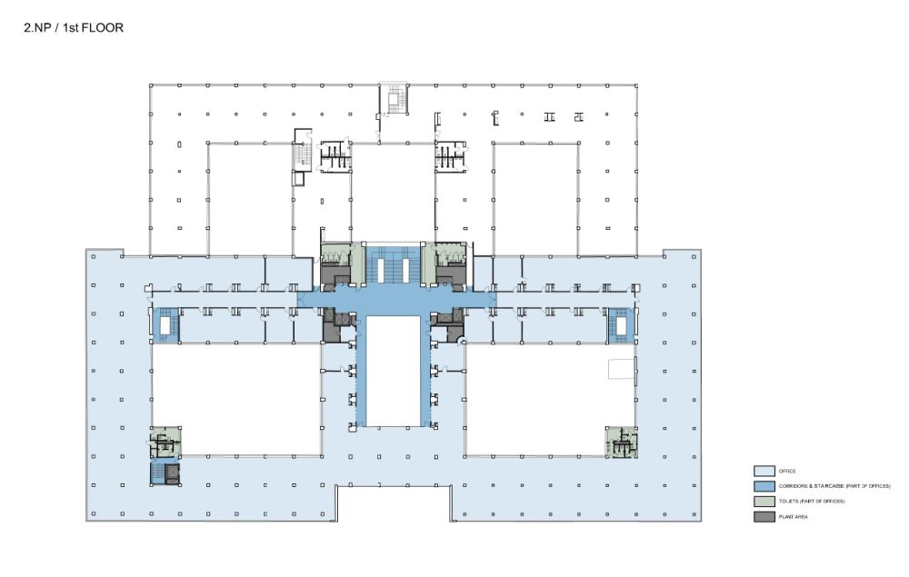
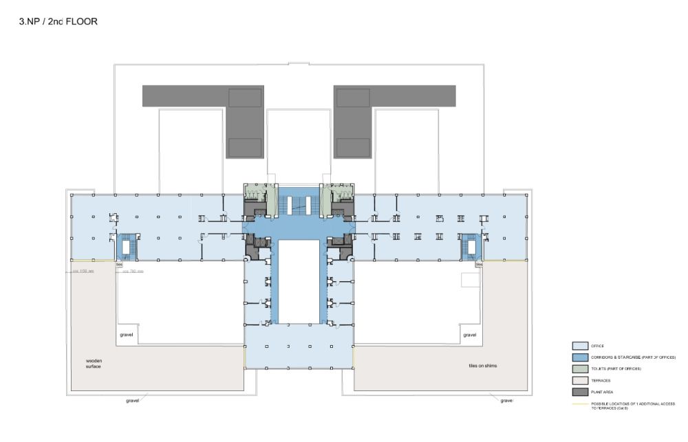
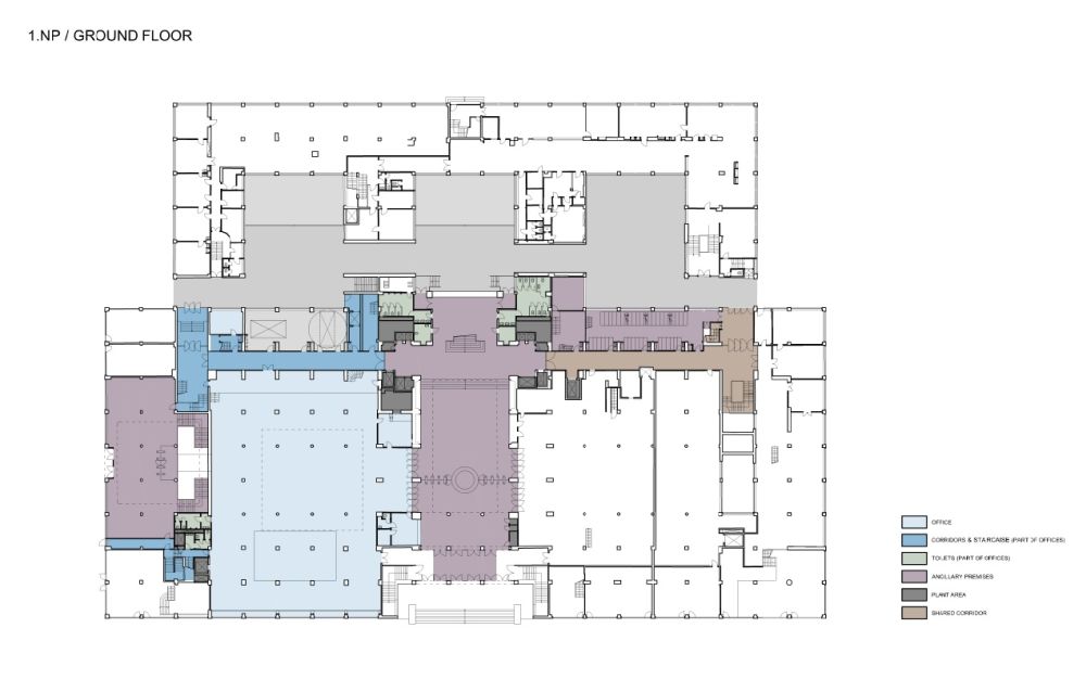
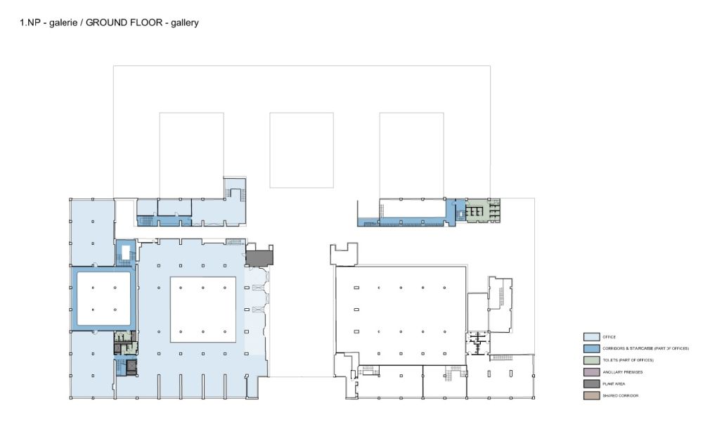
Dispozičně uzavřené jádro je směrem do křídel budovy a nahoru rozvolňováno do otevřenějších dispozic, které jsou s hlavní halou radiálně propojeny osami chodbových traktů. Předmětem obnovy a nového využití jsou ale i navazující prostory, velký sál, někdejší výstavní galerie – elektrárenská dvorana – impozantní prostory prvorepublikové lístkárny, polikliniky, obchodní jednotky na prstenci přízemí s přímou vazbou na exteriér a samozřejmě také přilehlé plochy, kterým bude navrácen tradiční vzhled doplněný moderním detailem parteru.
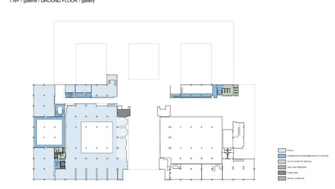
Palác Elektrických podniků byl stejně jako obdobné meziválečné stavby charakteristický multifunkčním programem. Kromě kancelářských ploch situovaných převážně od druhého patra výše zahrnoval například kulturní centrum s velkým společenským sálem. Stovky metrů čtverečních byly věnovány obchodu a službám, velkou část z nich tvořily plochy související s prezentací elektrických spotřebičů v podobě velkorysých obchodních galerií. V budově byla také restaurace a velké balneo, zdravotní zařízení určené prioritně pro zaměstnance Elektrických a Dopravních podniků.
Objekt byl navržen jako železobetonový monolitický skelet, doplněný v úrovni posledních dvou podlaží skeletem ocelovým. Subtilní železobetony jsou v kombinaci se sklobetonovými tvarovkami také materiálem střešních konstrukcí a plášťů. Fasády byly provedeny jako cihelné vyzdívky opatřené silnou vrstvou cementové malty, do které se kladly obklady z keramiky. Právě ty daly paláci signifikantní charakter. Okna jsou převážně dřevěná, v partiích pásových sestav, velkých prosklených stěn a v posledních ustupujících podlažích kovová. Objekt je celkově navzdory zdánlivě střízlivému a utilitárnímu výrazu mimořádně složitý z hlediska stavebně-konstrukčního. Je plný atypických prvků a detailů. Nacházíme tu řadu inovativních prvků, například se jednalo o první administrativní objekt s řízenou vzduchotechnikou bez nutnosti větrání okny. K tomu byly v suterénu vystavěny strojovny o velikosti rodinného domu. Distribuci upraveného vzduchu zajišťoval složitý systém vertikálních a horizontálních rozvodů. Vyvažován a ovládán byl historicky prvním řídicím systémem regulace firmy Carrier, který je dodnes evropským unikátem. Vertikální štěrbiny pro ohřívání prostoru pak místy tvořily i vlastní prosklené fasády s dvojitou konstrukcí a klapkami na úrovni přívodu, které bychom dnes popsali jako inteligentní. Tímto způsobem byl ohříván například i prostor centrálního schodiště v konci ústřední pětipatrové lodi s pavlačemi v jádru objektu.
Dalším, neméně pozoruhodným a pro objekty z 30. let minulého století signifikantním momentem byla práce s železovým betonem, který se využíval nejen pro hlavní nosnou konstrukci, ale i pro vyzdívky a podhledy realizované jako subtilní moniérky často o síle jen několika centimetrů. V kombinaci se skleněnými tvarovkami tvořil unikátní rozsáhlé konstrukce zastřešení nebo vertikální členění stavby tam, kde architekt usiloval o prostoupení denního světla do hloubek dispozice.
Materiál se svými prvky a aplikací přizpůsoboval požadavkům architektury a důrazu na detail, ve výsledku se tak i běžné betonové, případně sklobetonové konstrukce staly svébytným architektonickým prvkem nebo spíše dílem. Stejně bychom mohli pokračovat u dalších typů konstrukcí: výplní otvorů, dlažeb, schodišť a jejich zábradlí a v neposlední řadě atypicky navrhovaných osvětlovacích těles. Naprostá většina prvků byla přitom navržena, vytvořena a aplikována právě jen pro tuto výjimečnou stavbu.
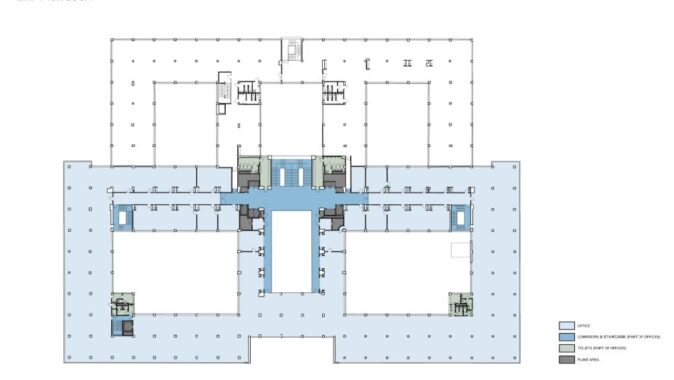
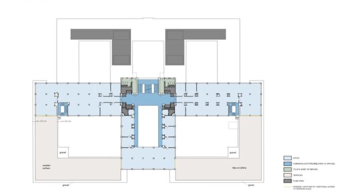
Cílem našeho projektu bylo prezentovat signifikantní části budovy v jejich autentické rekonstruované podobě a celý objekt pak jako moderní, i dnes plně funkční administrativní budovu poskytující nadstandardní inspirativní prostory nejen pro práci. Jádro tvoří kancelářská část s těžištěm v pětipatrové lodi centrální dvorany lemované galeriemi po obvodu. Dispozičně uzavřené jádro je směrem do křídel budovy a nahoru rozvolňováno do otevřenějších dispozic, které jsou s hlavní halou radiálně propojeny osami původních chodbových traktů. Zatímco u nadzemních podlaží hlavní budovy a jejích klíčových partií dochází k rekonstrukci zaměřené především na obnovu architektonického výrazu a soulad původního a uvažovaného určení objektu, u navazujícího křídla a zejména podzemí můžeme hovořit spíše o konverzi, když namísto technických suterenů, převážně skladů a garáží vzniká unikátní automatický parkovací zakladač, jeden z největších svého druhu na území ČR. Díky němu nebude okolí obnovené administrativní a obchodní budovy neúměrně obtěžováno provozem a je naopak možná jeho revitalizace, která je spolu s obnovením prodejních jednotek v parteru součástí realizovaného projektu.
Obnova této funkcionalistické stavby
reprezentuje novou kategorii památkově chráněných objektů. Zatímco obnova
staveb z historicky starších období je po mnoha desetiletích práce s památkovým
fondem dobře popsána v metodice, stavebních a restaurátorských postupech a
vyzkoušena na stovkách objektů, rekonstrukce novodobé architektury přináší
požadavek vypořádat se se zcela odlišnými stavebními technikami a materiály. U
špičkových staveb meziválečného období se navíc nezřídka setkáváme s nezvyklými
postupy výstavby, výrobky a technologiemi, které jsou v budovách používány
téměř v experimentální podobě a často se jedná o první a jediné uplatnění
daného prvku vůbec. Dost často právě i proto, že se v budoucnu ukázal jako
nevhodný, těžko udržovatelný nebo technicky vadný. To vše přináší
architektonické dědictví 1. republiky v podobě výzvy pro současné architekty a
stavaře.
Na přípravě projektu rekonstrukce a jeho zpracování se podílelo několik desítek odborných organizací a vice než stovka projektantů mnoha profesních specializací. Na jejich práci navázali stavební dodavatelé a restaurátoři. Rekonstrukci a přestavbu paláce Elektrických podniků lze s jistotou označit za jednu z největších a technicky nejnáročnějších rekonstrukcí památkově chráněného objektu na území Prahy. Je průlomová mimo jiné rozsahem stavební intervence, zapojením odborných skupin různých oborů a téměř laboratorním hledáním finálního optimálního řešení. V tomto ohledu přináší mimo jiné obohacení poznatků o meziválečné architektuře i možnostech při její obnově. Ale především, je oslavou výjimečné architektury, která se po desítkách let představuje ve svém někdejším lesku. Ten doplňují současná organizace prostoru a nové detaily.
Autorská zpráva
Obnova paláce získala titul Stavba roku 2021
Investor: Bubenská 1 – CPI Group
Autor projektu přestavby a rekonstrukce: TaK Architects, s.r.o. – Marek Tichý, Jana Kořínková, Pavla Brůžová
Vedení projektu: Petr Beránek
Technické řešení stavby: AED Project a.s. – Zbyněk Ransdorf, Petr Vinklar, Blanka Bulířová, Adam Špunda; Building statika, Petr Šimák
Technický tým řešitelů úloh techniky prostředí: Lubomír Guziur, František Kubec, Vladimír Píša, Jiří Schaffer, Ivo Tříska, Bohuslav Kouba
Požárně bezpečnostní zabezpečení: František Chuděj, Pavol Ondruš
Generální dodavatel stavby: Metrostav a.s. – vedoucí projektu David Vlasák
Dodavatelé restaurátorských celků: BEKR Art, Hefaistos, Kamono
Technický dozor objednatele: BETKON, a.s. – Miroslav Kulda a kolektiv
Na přípravě projektu rekonstrukce a jeho zpracování se podílelo několik desítek odborných organizací a vice než stovka projektantů mnoha profesních specializací. Na jejich práci navázali stavební dodavatelé a restaurátoři. Rekonstrukci a přestavbu paláce Elektrických podniků lze s jistotou označit za jednu z největších a technicky nejnáročnějších rekonstrukcí památkově chráněného objektu na území Prahy. Je průlomová mimo jiné rozsahem stavební intervence, zapojením odborných skupin různých oborů a téměř laboratorním hledáním finálního optimálního řešení. V tomto ohledu přináší mimo jiné obohacení poznatků o meziválečné architektuře i možnostech při její obnově. Ale především, je oslavou výjimečné architektury, která se po desítkách let představuje ve svém někdejším lesku. Ten doplňují současná organizace prostoru a nové detaily.
Autorská zpráva
Obnova paláce získala titul Stavba roku 2021
Investor: Bubenská 1 – CPI Group
Autor projektu přestavby a rekonstrukce: TaK Architects, s.r.o. – Marek Tichý, Jana Kořínková, Pavla Brůžová
Vedení projektu: Petr Beránek
Technické řešení stavby: AED Project a.s. – Zbyněk Ransdorf, Petr Vinklar, Blanka Bulířová, Adam Špunda; Building statika, Petr Šimák
Technický tým řešitelů úloh techniky prostředí: Lubomír Guziur, František Kubec, Vladimír Píša, Jiří Schaffer, Ivo Tříska, Bohuslav Kouba
Požárně bezpečnostní zabezpečení: František Chuděj, Pavol Ondruš
Generální dodavatel stavby: Metrostav a.s. – vedoucí projektu David Vlasák
Dodavatelé restaurátorských celků: BEKR Art, Hefaistos, Kamono
Technický dozor objednatele: BETKON, a.s. – Miroslav Kulda a kolektiv











































