Rodinný dům na Kvíčale

Parcela se nachází v Suchovršicích v části zvané Kvíčala. Jsou tu domy srovnatelné velikosti postavené v různých obdobích – statky, výstavba ze sedmdesátých let i novostavby. S ohledem na polohu komunikace jsme stavbu navrhli v jihovýchodní části pozemku, takže byly zachovány dostatečné odstupy od okolních objektů a zároveň jsme tak maximálně využili zbývající části pozemku pro zahradu. Navíc je z tohoto místa také výhled na Krkonoše.

Větší hmota domu je dvoupodlažní s pultovou střechou a je svým delším rozměrem (a hřebenem) orientována souběžně s komunikací. Jednopodlažní část s plochou střechou, která je využita jako terasa, k ní přiléhá ze západní strany. Dvoupodlažní část má bílou omítku, nižší část je obložena dřevěnými deskami v červené barvě. Dům jsme navrhli tak, aby vnitřní uspořádání reflektovalo orientaci pozemku vůči světovým stranám a maximálně využilo výhledů. Do zahrady se otevírá jižním a západní směrem, směrem ke komunikaci jsou pouze pásová okna. Okenní otvory, které dotvářejí architektonický vzhled, jsou s ohledem na požadovanou nízkou energetickou náročnost domu z větší části neotvíravé.
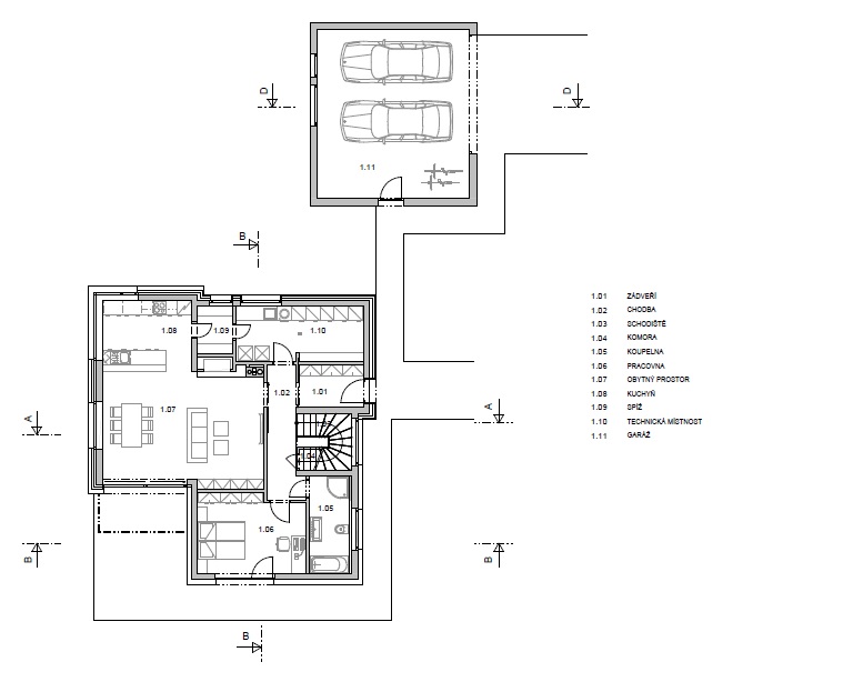
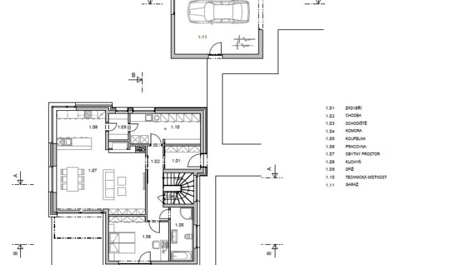
Samostatně stojící garáž má rovněž pultovou střechu. S ohledem na celkovou kompozici má střecha opačný sklon, než dům. Orientace hřebenů je shodná.

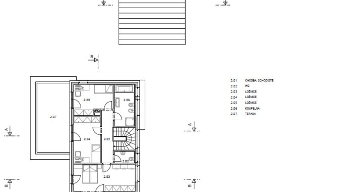
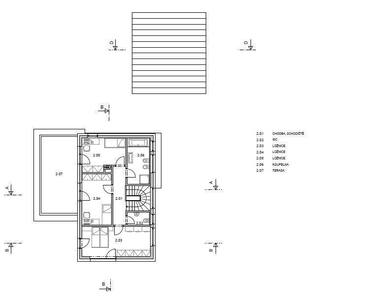
Vstup do domu je navržen od komunikace – přes zádveří se vchází do schodišťové haly, v přímém směru navazuje na halu obývací pokoj s krbem a vestavěnou knihovnou, jeho součástí je i jídelní kout. V jednom prostoru, avšak mírně oddělená, byla navržena i kuchyň, na kterou navazuje spíž. Z haly je přístupná technická místnost, koupelna a pracovna, jež může sloužit také jako pokoj pro hosty. Do druhého nadzemního podlaží vede schodiště z haly. Jsou tu tři ložnice, koupelna a samostatné WC. Z ložnic dětí je přístupná střešní terasa.

Autorská zpráva

 
Rodinný dům na Kvíčale, Suchovršice
Autor: ROSA – ARCHITEKT; Ing. arch. Michal Rosa, Ing. arch. Martina Rosová

Comments are closed.