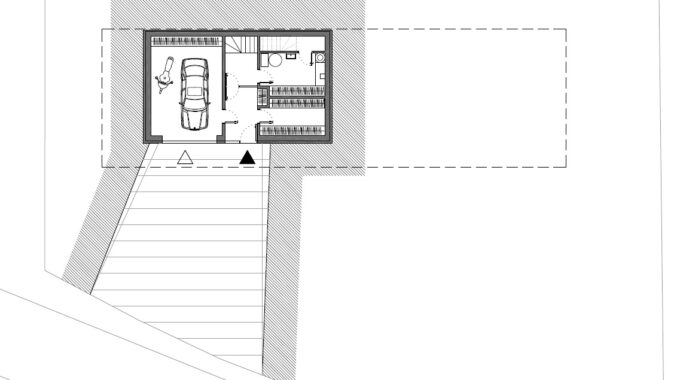
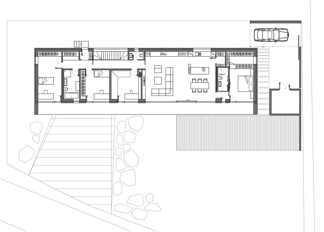
Místo stavby leží v klidné části Zlína v nově budované
čtvrti na severozápadě města v části Prštné. Parcela má tvar obdélníku 37 x 18
m s protaženým jižním rohem (na délku kratší strany 28 m), orientována je na
jihozápad se západním svahováním a s krásným výhledem do údolí a na protější
svahy. Silnice pozemek ohraničuje od západu a jihu.
















