Rohové překlady Porotherm KP Vario UNI R

Na podzim roku 2009 akciová společnost Wienerberger cihlářský průmysl představila na pražském stavebním veletrhu FOR ARCH řešení nadokenních překladů pro zabudování žaluzií a rolet s názvem Porotherm Vario. Výhodou těchto překladů je variabilní použití pro různé tloušťky stěn (odtud název Vario), pro které lze překlady použít, dosažené skladebností jednotlivých prvků systému a jejich kombinacemi. Částečnou nevýhodou tohoto systému je omezený prostor pro zabudování stínicích prvků. Například balkónové dveře je možné zastínit pouze takovým typem žaluzie, který dodává pouze jediný výrobce.

Během roku společnost Wienerberger zákazníkům v tomto systému nabídla i řešení tzv. rohového okna, které pak prezentovala na svých setkáních s odborníky ze stavební praxe v rámci jednoho z ročníků velmi úspěšného Wienerberger fóra.

V dubnu loňského roku pak společnost představila nové řešení té části překladu Porotherm KP Vario, do které se zabudovává prvek stínicí techniky, přičemž nosná část překladu byla ponechána beze změn, protože použití v praxi prokázalo jeho mimořádnou výhodnost. Polystyrénový tepelněizolační díl byl v systému nahrazen samonosnou schránkou s univerzálním použitím jak pro rolety, tak pro žaluzie (odtud přídomek UNI). Schránka byla zkonstruována z lehkých moderních materiálů (desek z materiálů purenit® a puren®) tak, aby co nejlépe naplňovala požadavky na tepelnou ochranu, poskytovala dostatek vnitřního prostoru pro stínicí techniku, umožňovala i dodatečné zabudování rolet nebo žaluzií až po provedení finální fasádní úpravy a také dávala možnost volby mezi přiznanými nebo do ostění okna či dveří zapuštěnými vodicími lištami. Vývoj a testování nové univerzální schránky, na kterém se podílel kolega ze slovenské sesterské společnosti, firma PROALU z Vestce u Prahy a hlavně pak její výrobce firma SM produkt z Lišova u Českých Budějovic, trvalo jeden a půl roku.

Překlady Porotherm KP Vario UNI si již během zbytku roku 2016 získaly velkou oblibu, když se za devět měsíců od uvedení na trh prodalo téměř pět kilometrů těchto výrobků! Že se nejedná o ledajaký výrobek, potvrzuje i fakt, že překlady získaly Zlatou medaili Stavebních veletrhů Brno 2016 a že v soutěži Innovation Award 2016 celého koncernu Wienerberger AG získaly „First Prize“ v kategorii Výrobky a systémy.

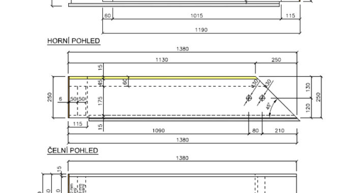
Tentokrát dříve než „do roka a do dne“ přišla společnost Wienerberger s řešením pro stále oblíbenější rohová okna, často používaná v budovách pro bydlení. Nový systém rohových překladů Porotherm KP Vario UNI R, představený na loňském veletrhu FOR ARCH v Praze, vychází z původního konceptu překladů pro rohová okna, došlo však k několika konstrukčním úpravám. Ocelová hlavice sloupku byla uzpůsobena pro osazení a následnou fixaci levé a pravé rohové schránky Porotherm Vario UNI L a P tak, aby se již dále nemusely jinými prostředky uchycovat k monolitické části překladu. Univerzální schránky, které se v rohu napojují pod úhlem 45°, jsou uloženy svou zadní stěnou na hlavici a k hlavici se připevňují pomocí protiplechu tvaru širokého L. Protiplech se v místě napojení schránek přiloží dovnitř schránek zespodu horních desek a zespodu přišroubuje pomocí 4 šroubů M8 se zapuštěnou hlavou (oba konce schránek se v rohu fixují dvěma šrouby) do vnější konzoly hlavice, která ponese překlady Porotherm KP 7 umístěné nad schránkami v úrovni ztužujícího věnce.

Byly navrženy dvě varianty hlavice – jedna pro tloušťky stěn 380 a 400 mm, druhá pro tloušťky 440 a 500 mm. Ocelový sloupek čtvercového průřezu byl zesílen na profil 100×100×8 mm, aby pokud možno vyhověl běžnému zatížení překladů v rodinných domech. Při zatíženích sloupku nad 60 kN a výšce nad 1,5 m je vždy nutné sloupek individuálně posoudit

Nosná část rohového překladu se tentokrát skládá výhradně z překladů Porotherm KP Vario se spřahovací výztuží.

Podrobný postup montáže je uveden v technickém listu, který je umístěn na webových stránkách společnosti www.wienerberger.cz.

Překlady Porotherm KP Vario R se dodávají v délkách od 1000 mm do 3250 mm v odstupňování po 250 mm.

Univerzální rohové schránky Porotherm Vario UNI se dodávají v provedení levém (Vario UNI L) a pravém (Vario UNI P) – schránky se označují L a P podle pohledu na rohové okno z exteriéru. Rozměry průřezu vnitřního prostoru schránky pro stínicí prvek jsou 175×260 mm. Součinitel tepelné vodivosti materiálu purenit® 550MD je 0,080 W/(m·K), desek tloušťky 60 mm z purenu® je 0,028 W/(m·K).

Oba materiály, ze kterých je schránka vyrobena, mají vynikající tepelněizolační vlastnosti, jsou velmi lehké, ale zároveň mají i jednu nevýhodu – jsou křehké. Přestože každá schránka je pro přepravu zabalená do bublinkové folie, řadí se tento výrobek do kategorie „křehký“. Tuto skutečnost by měli respektovat všichni pracovníci, kteří přijdou do styku se schránkami při manipulaci, dopravě i skladování.

podle podkladů společnosti Wienerberger


Comments are closed.