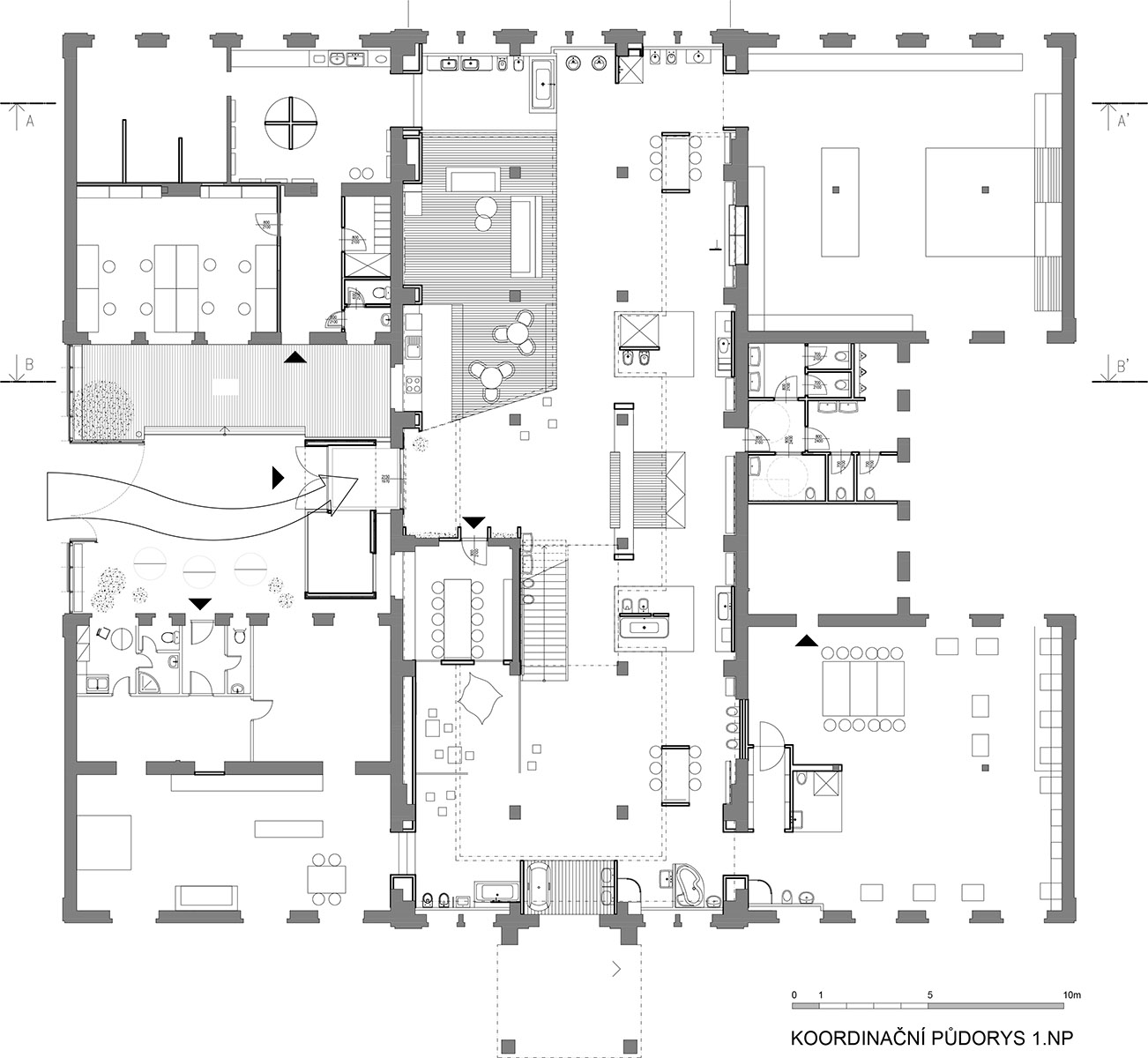
Showroom Elements

Místo: Sokolská třída 1545/89, Ostrava
Investor: GIENGER, spol. s r. o.

Comments are closed.