Společnost Kloboucká lesní je firmou, která vytrvale prošlapává cestu k udržitelnému hospodaření s lesem a krajinou. Inspiruje se odkazem našich předků a zároveň zkouší stále nové technologie i možnosti. V oboru, se kterým obvykle není spojována inovativnost a odvaha, se firma profiluje jako pokroková a kreativní. Sídlo společnosti má tyto ideje reprezentovat. Kloboucká lesní se svými aktivitami snaží ukázat potenciál udržitelného stavění v souladu s ekologickým myšlením a nejmodernějšími technologiemi.Odvětví, v němž firma působí, prochází dramatickou změnou vlivem posunu přírodních podmínek. Sídlo firmy tedy musí být pružně upravitelným prostorem umožňujícím vývoj a změnu. Vytváříme prostory pro tvůrčí práci, výzkum a inovaci. Dům je navržen jako schránka tvořená konstrukcí, prostory uvnitř jsou přestavitelné a jsou zde vytvořeny rezervy pro nečekaný rozvoj.Stavba je navržena tak, aby udávala směr stavění budoucnosti. Ekologie, jednoduchost a střídmost v kombinaci s nejmodernějšími technologiemi – to vše vsazeno do prostředí přírodních prvků, zeleně a vody. Konstrukce je vyrobena výhradně z materiálu, který vzniká přímo na místě – na lince Kloboucké lesní, necelých 100 metrů od místa stavby. Je to nejprostší a nejstarší stavební materiál – dřevo. Způsob zpracování dřeva je však ryze současný. Použity jsou profily BSH – vlajková loď produktů společnosti. Z tohoto materiálu je složena rámová konstrukce tradičního tvaru, která se mnohokrát zopakuje a vytvoří dlouhou elegantní hmotu celé stavby.V urbanismu fabriky je pro sídlo zvoleno exponované místo. Severní fasáda objektu je otočena k obci a přijíždějícím návštěvníkům. Stavba svou hmotou zakrývá průmyslové stavby areálu a její pozadí v druhém plánu tvoří krásná scenérie Pláňavského hřebene.
Technologie
Vnitřní technologie domu kombinují moderní
technická řešení a selský rozum.
Základní konstrukce domu je kombinací těžkého
dřevěného skeletu, betonového jádra a ocelových ztužení. Jednotlivé moduly
vyplňuje několik typů fasádních panelů, které jsou umístěny dle logiky
vnitřní dispozice. Modulární konstrukce domu poskytuje velkou variabilitu
použití i v případě budoucí potřeby změny využívání. Hlavní část
dřevěné konstrukce tvoří lepené BSH profily, vyrobené pouze několik desítek
metrů od stavby. Většina dřeva použitého na stavbu je
z nedalekých lesů, převážně se jedná o beskydský smrk.
Při výběru stavebního dřeva se kladl důraz na jeho kresbu
i hustotu vláken a podle toho se také vybíral les, kde probíhala
těžba.
Střecha domu je pokryta solárními panely, které
uspokojí energetickou spotřebu domu a zároveň zastupují funkci střešní
krytiny. Budova disponuje bateriovým uložištěm o celkové kapacitě 72 kW.
Přebytky jsou směřovány na pokrytí energetických požadavků výroby firmy.
V současné době pracuje většina zařízení v areálu na energii
ze slunce. Severní stranu střechy pokrývají skleněné panely, které
prosvětlují podstřešní prostory.
Voda ze střešních ploch je odváděna
do nadzemních nádrží, které v letních měsících přirozeně ochlazují
budovu a akumulují vodu pro zpětné použití v areálu. Vodní
plocha je také způsobem, jak odrážet rozptýlené světlo i do hlubších
částí dispozice.
Zdrojem pro vytápění stavby a celého
areálu je centrální areálová kotelna, kde hlavní palivovou surovinou je štěpka
vlastní produkce. Tímto je areál zcela nezávislý na jiném palivovém
zdroji. Přidanou hodnotou je, že se jedná o zcela ekologický zdroj.
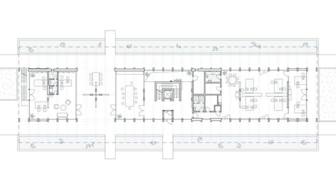
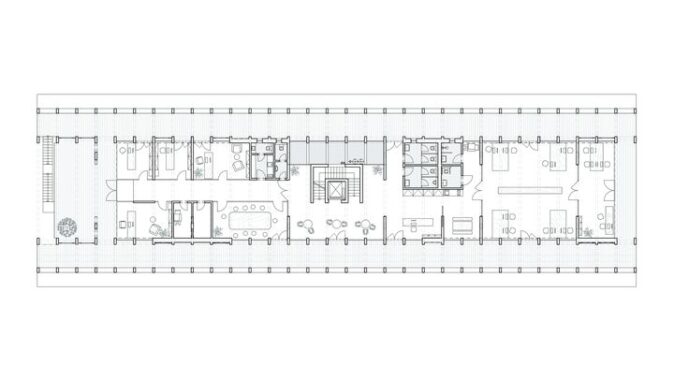
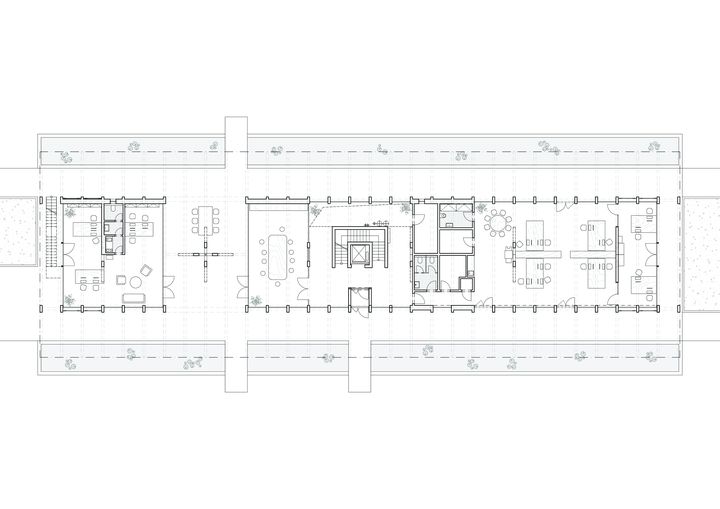
Interiér Za poměrně tradicionalistickým tvarem objektu se sedlovou střechou se skrývá mnoho současných technologických řešení, která odpovídají dnešní moderní době. Velký důraz byl při návrhu také kladen na pracovní pohodu zaměstnanců, která je zajištěna kvalitním pracovním prostředím v interiéru a variací krytých venkovních pobytových teras, které pronikají celým domem. Interiér stavby si na nic nehraje. Koncepčně souzní s celkovým pojetím domu, které klade důraz na konstrukční upřímnost. V interiéru je na první pohled patrné, jak všechno funguje. Základní principy vnitřních prostor jsou dokonce patrné i z exteriéru. Nosná konstrukce těžkého skeletu prorůstá celým domem a rytmicky dělí interiér. Poslední úroveň domu je otevřeným prostorem. Kryje ho sofistikovaná střecha se solární elektrárnou. Tam, kam paprsky slunce nedosáhnou, fotovoltaické panely nahrazuje zasklení. Materiálově je dům střídmý. Nosné prvky BSH z lepených smrkových profilů jsou v interiéru kombinovány se skleněnými plochami oken, dřevěným obkladem a dřevoskleněnými akustickými příčkami. Tyto příčky dodávají interiéru otevřenost. Všechny prosklené stěny a obklady z biodesek jsou kluzně uloženy vůči pohybu dřevostavby. Dřevobetonové stropy se propisují do pohledových stropních konstrukcí, kterým na podlaze sekunduje beton leštěný. Veškeré technologie jsou v interiéru instalovány viditelně, prostupy dřevěnými příčkami jsou realizovány bezrámečkovými prostupy. Principy interiéru se opakují ve všech patrech domu. Kancelářské využití doplňují místa, která mají v budoucnu sloužit pro kreativní workshopy anebo jako relaxační prostor pro zaměstnance firmy. Nejvyšší otevřené patro je multifunkčním prostorem pro přednášky, firemní akce či představení nových produktů. Interiér domu má být inspirativním prostředím, popisujícím principy fungování Kloboucké lesní – firmy, která se zabývá velmi tradičním řemeslem, ale zároveň se nebojí nových věcí.
Ekologie
Interiér Za poměrně tradicionalistickým tvarem objektu se sedlovou střechou se skrývá mnoho současných technologických řešení, která odpovídají dnešní moderní době. Velký důraz byl při návrhu také kladen na pracovní pohodu zaměstnanců, která je zajištěna kvalitním pracovním prostředím v interiéru a variací krytých venkovních pobytových teras, které pronikají celým domem. Interiér stavby si na nic nehraje. Koncepčně souzní s celkovým pojetím domu, které klade důraz na konstrukční upřímnost. V interiéru je na první pohled patrné, jak všechno funguje. Základní principy vnitřních prostor jsou dokonce patrné i z exteriéru. Nosná konstrukce těžkého skeletu prorůstá celým domem a rytmicky dělí interiér. Poslední úroveň domu je otevřeným prostorem. Kryje ho sofistikovaná střecha se solární elektrárnou. Tam, kam paprsky slunce nedosáhnou, fotovoltaické panely nahrazuje zasklení. Materiálově je dům střídmý. Nosné prvky BSH z lepených smrkových profilů jsou v interiéru kombinovány se skleněnými plochami oken, dřevěným obkladem a dřevoskleněnými akustickými příčkami. Tyto příčky dodávají interiéru otevřenost. Všechny prosklené stěny a obklady z biodesek jsou kluzně uloženy vůči pohybu dřevostavby. Dřevobetonové stropy se propisují do pohledových stropních konstrukcí, kterým na podlaze sekunduje beton leštěný. Veškeré technologie jsou v interiéru instalovány viditelně, prostupy dřevěnými příčkami jsou realizovány bezrámečkovými prostupy. Principy interiéru se opakují ve všech patrech domu. Kancelářské využití doplňují místa, která mají v budoucnu sloužit pro kreativní workshopy anebo jako relaxační prostor pro zaměstnance firmy. Nejvyšší otevřené patro je multifunkčním prostorem pro přednášky, firemní akce či představení nových produktů. Interiér domu má být inspirativním prostředím, popisujícím principy fungování Kloboucké lesní – firmy, která se zabývá velmi tradičním řemeslem, ale zároveň se nebojí nových věcí.
Ekologie
Téma ekologie díky dotační politice
a přijímaným normám stavební profesí rezonuje. Jen malá část stavebníků
se však o ekologii zajímá doopravdy a neřeší ji pouze
z ekonomického, či legislativního pohledu. Výrobci stavebních materiálů
se předhání, čí stavební materiál je nejčistější, jaký výrobní proces
je nejšetrnější k přírodě, ale především který materiál, či výrobek
vám ušetří co nejvíc peněz.
Stavební normy jsou nastaveny tak, že už
prakticky nesmíme postavit dům bez izolace, protože není „ekologický“.
A tak se všechno obaluje. Pod nánosem izolačních vrstev mizí
nejen novostavby, ale také krásné staré domy. Státní podpora sice pomáhá
stavebnímu byznysu, ale celkově spíše škodí.
Ekologické stavění, je mnohem komplexnější, než
se zdá. Když stavíme, nezáleží na tom, jestli máme dům obtažený
polystyrenem, nebo ne. To, co dělá domy ekologickými, nejsou normy
na zateplení, ale to, jak domy umíme používat nebo, kde je postavíme.
Důležité je uvědomit si, že tématem není jen přímá energetická spotřeba stavby,
ale celá množina úkonů a energetických vstupů, které vznikají
při výrobě jednotlivých komponent domu a jejich cestě na stavbu,
ale také správné používání stavby a v neposlední řadě i přemýšlení
o tom, co nastane, až bude životnost projektu u svého konce.
Takové přemýšlení je Kloboucké lesní blízké. Mít
kontrolu nad celým procesem, zajistit kvalitu a mít zodpovědnost
v každé jednotlivé produkční fázi, pohlížet na věci nejen
z hlediska rentability, ale především udržitelnosti. Tady nejde jen
o prodej a zpracování dřeva, jedná se o komplexní činnost,
která se dá pojmenovat péčí o les. Na jejím začátku je semínko
a na konci dům. Jednotlivé části systému se nedají oddělit,
jedno bez druhého nemůže existovat.
Životnost budovy je projektována s přesahem
na minimálně tři generace.
Vize
Vize
Představte si svět, kde materiály na stavbu
vašeho domu necestují přes půl světa. Kde znáte les, kde se pokácely
stromy, ze kterých máte postavený dům.
Sídlo Kloboucké lesní není jen administrativní
zázemí progresivní firmy, je to laboratoř. Zkoumá, jak by se daly stavět
domy rychleji, jak pracovat s energií i materiály tak, abychom
nezatěžovali přírodu při jejich výrobě, v průběhu jejich životnosti,
ale i při likvidaci na konci jejich životního cyklu. Ani kapka
vody nepřijde nazmar, ani joul energie se nepropálí jen tak a každá
zkušenost se využije pro další vývoj.
V České republice vyroste za rok dva
tisíce dřevostaveb, což odpovídá zhruba půlprocentnímu podílu na celkové
produkci dřeva v ČR. Naší snahou je, abychom toto mizivé množství
znásobili, abychom dokázali chytře využít potenciálu, který se nám sám
nabízí a dokázali stavět domy, které nebudou ekologické jen
z hlediska úspory na vytápění. Chceme se na proces výstavby
ze dřeva podívat z větší dálky, pochopit principy a spojitosti,
a pod touto novou optikou ho znovu složit dohromady.
Pro Klobouckou lesní je poznání postupů,
které navazují na samotné zpracování dřeva, zásadní pro další vývoj
firmy. Současný rozsah produkce firmy je zakořeněn ve sloganu, který
popisuje práci se dřevem jako proces od zasazení semínka až
po výsledný produkt, hoblované prkno.
Díky zkušenostem nabytým v laboratoři
se chceme společně dívat dál. Filosofie udržitelnosti, hospodárnosti
i společenské odpovědnosti nám ukazuje další možnosti a potenciály
rozvoje. V době, kdy je stavební průmysl zablokován byrokracií,
nedostatkem materiálů i lidí je ta správná chvíle začít znovu. Ekologicky,
efektivně a ekonomicky. Pojďme zúročit nabyté zkušenosti a stavět
takové domy!
Autorská zpráva Mjölk
Autorská zpráva Mjölk
Fotografie BoysPlayNice







































