Typová dřevostavba

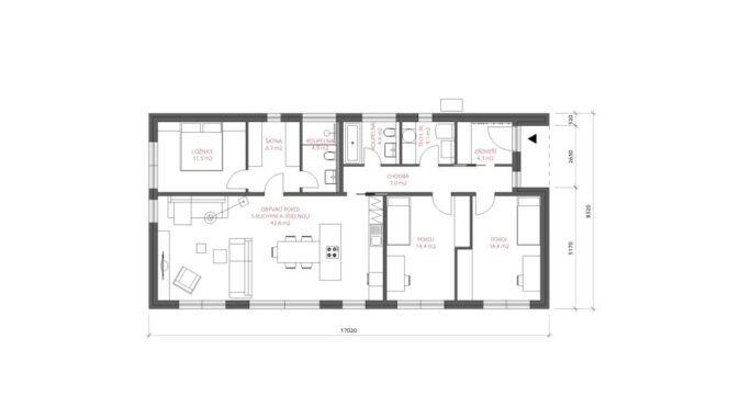
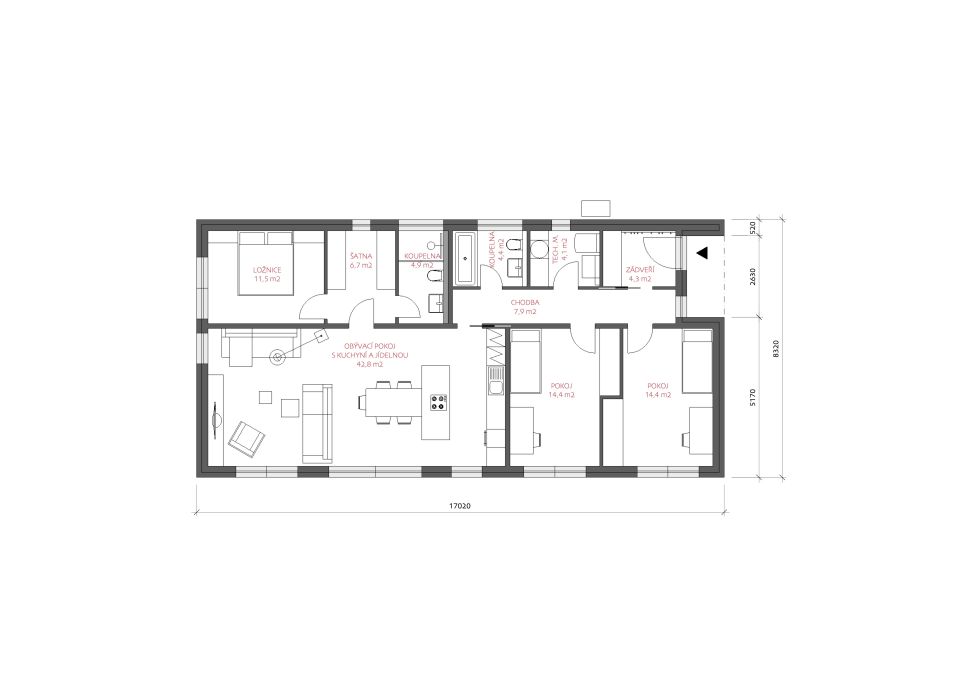
Dům je řešený jako jednopodlažní se sedlovou střechou a obdélníkovou zastavěnou plochou. Po jedné straně domu najdeme dva totožné dětské pokoje a obývací pokoj s jídelnou a kuchyní.

Všechny tyto místnosti disponují přímým vstupem na zahradu. Na straně druhé je zádveří, technická místnost, koupelna a také tzv. rodičovský blok. 

Našimi klienty velmi oblíbená oddělená část domu s ložnicí, vlastní šatnou a koupelnou, do kterého se vchází přes obývací pokoj. V ceně tohoto domu je fasáda tvořená omítkou v kombinaci s cihlovým obkladem. 

Aktuální cena v základu (včetně základové desky, rekuperace a tepelného čerpadla) vychází na 5 130 000 Kč. Více informací ZDE.

Dispozice: 4+kk
Zastavěná plocha: 141,6 m2
Užitná plocha: 115,4 m2
Konstrukční systém: montovaná dřevostavba

Tisková zpráva

Comments are closed.