(ČTK) – Praha 5 představila v galerii v budově radnice ve Štěfánikově
ulici výsledky urbanisticko-architektonické soutěže využití území Na
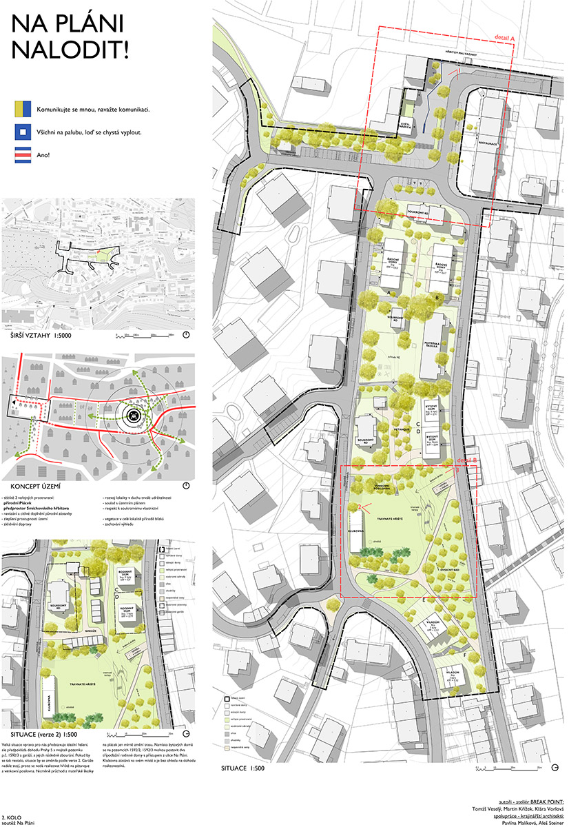
Pláni. Vítězem je kancelář Break Point. Na základě výsledků bude
vypracován finální projekt revitalizace. Všechny návrhy si bude moci
veřejnost prohlédnout od 2. do 28. února. Na Pláni měla původně
developerská firma Geosan Sigma stavět na pozemcích Prahy 5 domy. Proti
se postavili místní a radnice nakonec smlouvu firmě vypověděla.
„Vznikly různé návrhy od některých, které jsou velmi přírodní a
pasou se tu zvířata, až po relativně více zastavěné. Myslím, že návrh,
který vyhrál, se velmi citlivě staví k tomu území a obě polohy tam jsou
vyváženě zastoupeny,“ řekla zastupitelka a předsedkyně výboru územního
rozvoje Prahy 5 Zuzana Hamanová. Na podobě vítězného návrhu se podíleli
také místní obyvatelé.
Lokalita je nyní roztříštěná. „Území jsme si rozdělili na dvě
části. První je prostor před hřbitovem. Chtěli jsme vytvořit důstojný
nástup hřbitova, nyní tam žádný předprostor není. Je to místo, kde se
parkuje, a to často dost divoce. Tam jsme chtěli zklidnit dopravu,“ řekl
architekt Tomáš Veselý z vítězné kanceláře.
Druhou částí je území mezi ulicemi Na Pláni a K Vodojemu. „Řekli
jsme si, že pro nás je nejdůležitější zachovat to zelené srdce, kde je
hřiště. Navrhli jsme klubovnu a ve zbytku drobnou zástavbu, která
logicky doplňuje území podle toho, jak se vyvíjelo,“ řekl Veselý.
Vzniknout by mělo také například dětské hřiště pro školku, která bude
opravena a bude mít dvě třídy.
Jak přesně bude prostor ve čtvrti Malvazinky vypadat, není ale
definitivně rozhodnuto. „Ustavili jsme pracovní skupinu, která má za
úkol specifikovat zadání vítězům, aby vytvořil finální verzi,“ řekla
Hamanová. Podle ní se pak bude řídit rekonstrukce území. Také na konečné
verzi se budou podílet obyvatelé.
Na Pláni měla na zelené louce vyrůst více než desítka domů. Podle
odpůrců stavby z řad veřejnosti i místních politiků by to bývalo
znamenalo likvidaci zeleně i několika druhů živočichů. Geosan měl navíc
po vybudování domů od radnice koupit pozemky za 49,7 milionu Kč. Radnice
nakonec v roce 2013 smlouvu vypověděla. Následný soudní spor s
developerem radnice vyhrála.
Doplněno Stavbaweb:
Soutěž Na pláni – výsledky.
Výstava je otevřena v malé výstavní síni MČ Praha 5 (Štefánikova 13 – 15) v termínu 2. 2. – 28. 2. 2017, vždy Út – Pá od 13.00 – 18.00 hod.













