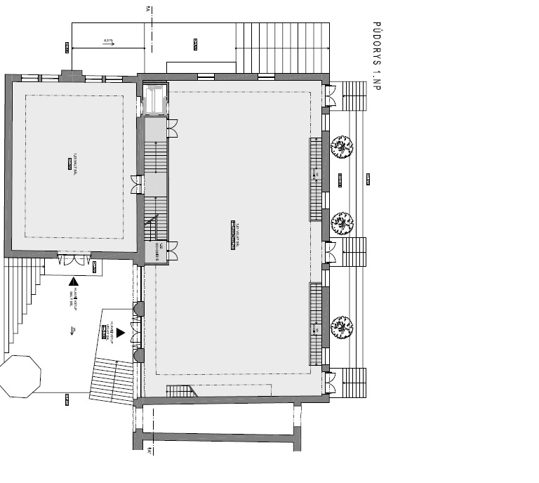
Návrh a umístění vychází ze zadání, respektuje připravovaný
návrh regulačního plánu. Plocha pro multifunkční vzdělávací centrum byla
vymezena s ohledem na statické a konstrukční možnosti starých průmyslových hal,
které budou pro nové potřeby částečně ubourány. Jedná se tedy o rekonstrukci
budov a veřejných prostranství v zastavěném území, pouze v části lokality
vznikne nový veřejný prostor. Provoz v centru se přibližuje galerii, kinu nebo
divadlu, ale ne v plnohodnotné podobě. V rámci návrhu byly uvažovány lokální
podmínky a zvyklosti a celkové pojetí stavby. Jedná se o experimentální
prostory, které představují uvolněnou alternativní formu ke konvenčnímu pojetí
divadla, kina nebo galerie.
















